门联窗图例

门联窗的设置问题
图片尺寸805x477
老师这种彩色铝合金门联窗怎么套定额?(图)
图片尺寸603x532
这种门联窗如何套定额是分别套门和窗吗尺寸怎么定
图片尺寸900x564
门联窗怎么算面积
图片尺寸375x533
门联窗怎样定义
图片尺寸871x761
门联窗
图片尺寸589x476
这种门联窗怎么设置
图片尺寸409x736
门联窗怎么绘制
图片尺寸1512x1512
门联窗
图片尺寸806x709
任何绘制窗户在上面的门联窗
图片尺寸325x355
请问老师这种门联窗该怎么绘制
图片尺寸578x490
1请问这种门联窗怎么画啊2带折线的是门不带的是窗吗
图片尺寸530x540
1请问这种门联窗怎么画啊2带折线的是门不带的是窗吗
图片尺寸1316x720
请问这两个门联窗如何定义
图片尺寸880x645
请问广联达中这种门联窗怎么处理
图片尺寸554x857
请教下各位老师傅像这种铝合金门联窗可以怎么套清单
图片尺寸1143x746
请问这个门联窗套什么清单定额
图片尺寸1207x851
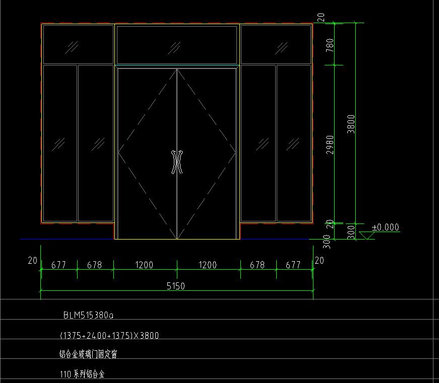
门联窗用什么定义
图片尺寸858x446
带折点的门联窗怎么画
图片尺寸734x673
门联窗的定义绘制
图片尺寸356x501