防水反坎图集

成型效果图卫生间反坎一次性浇筑施工做法,从结构自防水的根源上解决
图片尺寸1080x584
卫生间止水反坎_施工_混凝土_基层
图片尺寸1080x810
酒店卫生间止水反坎工艺,基本要求.#热门话题97 基本要求 - 抖音
图片尺寸924x1808
反坎是什么(防水反坎是什么)
图片尺寸442x442
什么是泛水, 泛水是建筑上的一种防水工艺,通俗的说其实就是在墙与
图片尺寸1924x1280
该项目卫生间反坎与想象中不同,并非随板一次性浇筑.
图片尺寸2000x2667
卷材防水施工方案v
图片尺寸519x358
防水反坎讲解
图片尺寸1080x1920
厨卫间反坎这样做,质量确实好!
图片尺寸1000x446
一,什么是卫生间反坎?
图片尺寸530x446
屋面防水工程防水细部构造做法,附节点图
图片尺寸1064x633
一,什么是卫生间反坎?
图片尺寸530x446
施工图# #室内设计师# 分享一种淋浴房排水及地面防水和挡水坎的做法
图片尺寸960x1280
深圳星河地产常用防水节点做法(反坎部分)
图片尺寸455x458
3种不同部位重要的反坎2处缓坡处理细节长久提高居住舒适度
图片尺寸3000x4000
防水反坎的钢筋怎么布置
图片尺寸481x445
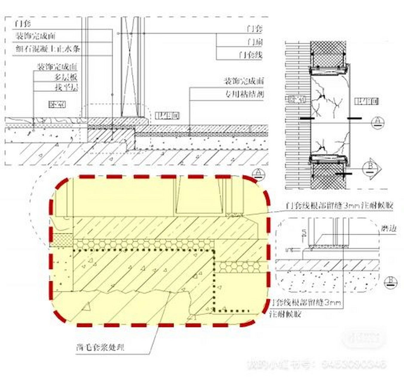
卫生间门口止水坎 1,门槛部位凿毛套浆处理,使止水坎
图片尺寸1353x1280
卫生间挡水坎的结构和防水工艺分享
图片尺寸1080x1080
卫生间止水反坎_施工_混凝土_基层
图片尺寸1080x1440
卫生间反坎一次性浇筑:降本增效,不渗不漏!_施工_模板_进行
图片尺寸1080x770