隆兴寺地图

京外名刹之首隆兴寺
图片尺寸800x1198
古城正定-隆兴寺1 - 津旭 - 灵梦憧憬 寻觅乐趣 饴酌回味
图片尺寸900x1351
隆兴寺导览图.
图片尺寸640x1365
图为梁思成手绘隆兴寺平面图.
图片尺寸1080x1921
小城古寺——正定隆兴寺
图片尺寸640x313
正定:千年古刹"隆兴寺"-龙腾苑
图片尺寸650x866
游正定隆兴寺
图片尺寸700x933
京外名刹之首正定隆兴寺这无处安放的魅力
图片尺寸608x1000
自由行走,疯狂六一~~第一站,正定
图片尺寸700x934
隆兴寺全景图. 隆兴寺
图片尺寸1365x2048
2019正定隆兴寺元旦演出活动
图片尺寸727x480
原始图片 沿着中轴线,游览隆兴寺依次可以见到:天王殿----摩尼殿
图片尺寸1500x2250
隆兴寺
图片尺寸350x852
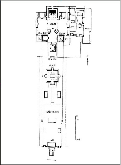
梁思成《正定古建筑调查纪略》中所绘隆兴寺之平面示意图
图片尺寸401x686
鉴赏正定隆兴寺摩尼殿
图片尺寸700x653
正定隆兴寺摩尼殿 北宋皇佑四年(1052年) 河北省正定县开化寺大雄宝殿
图片尺寸642x1231
正定隆兴寺平面图
图片尺寸389x530
正定隆兴寺
图片尺寸1300x878
佛国胜境,华北巨刹—正定隆兴寺
图片尺寸640x798
游隆兴寺,荣国府,清西陵小记
图片尺寸3024x2024