隔音门做法

酒吧机房隔音门免打扰定制ktv包厢门ktv防火门ktv不锈钢门包厢门
图片尺寸1500x1920
深圳优质隔音量40db钢制木质防火隔音门声闸门
图片尺寸511x600
不锈钢法兰西系列 ktv包房音门 斑马纹
图片尺寸1920x1210
装修隔音墙壁拆解图1,安装隔音门和隔音窗噪音进入室内的途径都是经过
图片尺寸600x536
隔音门#特种门窗 #全国发货欢迎合作 隔音门 - 抖音
图片尺寸1080x1440
天力优质304不锈钢隔音门ktv门夜场ktv隔音门夜总会隔音门
图片尺寸3360x5025
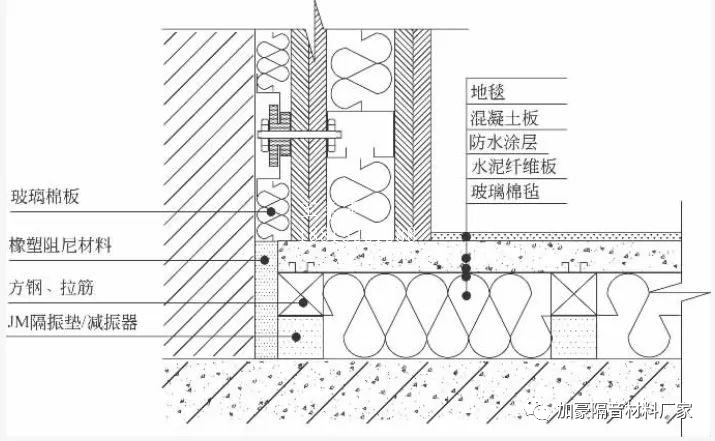
隔音门隔音墙施工方案
图片尺寸920x1302
轻奢极简现代房门木门实木复合免漆烤漆卧室无漆隔音门全屋 免漆整套
图片尺寸750x1054
厂家直销隔声门 钢制隔音门 甲级防火隔音门
图片尺寸1000x1000
ybox音博士钢质隔音门酒店隔声门静音门防火套装门录音棚门钢琴室门
图片尺寸790x1167
隔音门
图片尺寸565x425
室内门的隔音处理方法论 - 平开门体系-06
图片尺寸656x1024
隔音门窗和隔音门必备,做法看图
图片尺寸790x951
隔音门做法一般都有哪些
图片尺寸300x300
隔音门源海博创卧室隔音门
图片尺寸670x276
解秘五星级酒店客房的声学隔音施工方案经验分享
图片尺寸1080x660
零噪声卧室隔音门示意图
图片尺寸400x444
浅谈建筑声学施工中几个值得注意的问题
图片尺寸715x441
隔音门规范 隔音门的制作要点
图片尺寸727x505
门的隔音
图片尺寸600x421