预埋件结构图

不锈钢旗杆预埋件施工流程
图片尺寸397x500
预埋件结构大样图-1
图片尺寸1778x1257
预埋件尺寸图350
图片尺寸1919x1486
某预埋件构造配筋节点构造详图-钢结构节点详图-筑龙结构设计论坛
图片尺寸823x539
此预埋件怎么计算
图片尺寸1377x697
中铁二局五公司苏州轨道5-16项目预埋件采购(收货合格后三个月付款)
图片尺寸1888x1760
关于预埋件
图片尺寸610x572
混凝土墙内预埋件大样图
图片尺寸567x334
预埋件图示
图片尺寸789x610
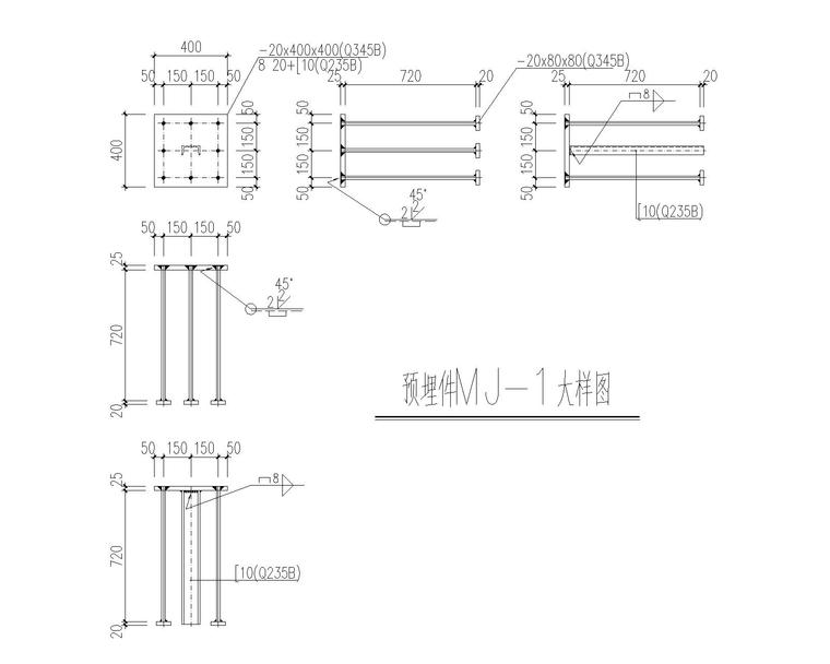
预埋件大样图.jpg
图片尺寸760x608
幕墙预埋件安装在哪
图片尺寸760x644
cn212641764u_一种在梁侧模封闭后放置的幕墙预埋件有效
图片尺寸1557x1688
预埋件怎么计算工程量
图片尺寸1335x576
如何计算轻钢预埋件工程量
图片尺寸582x414
预埋件大样图.jpg
图片尺寸760x608
各种不同类型预埋件全套大样构造详图
图片尺寸610x861
幕墙预埋件施工方案
图片尺寸688x338
cn102061746a_一种钢结构组合预埋件及其施工方法有效
图片尺寸1693x2323
钢结构预埋件
图片尺寸1391x810
预埋件大样图大样
图片尺寸820x593