餐厅大样图
![[浙江]宁波经典中式餐厅室内装修施工图](https://i.ecywang.com/upload/1/img0.baidu.com/it/u=340422985,522427910&fm=253&fmt=auto&app=138&f=PNG?w=752&h=500)
[浙江]宁波经典中式餐厅室内装修施工图
图片尺寸1359x903
酒店自助餐厅台节点详图施工图下载
图片尺寸1600x1280
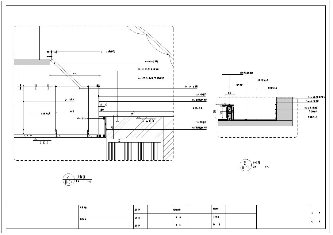
一层中餐厅大样图
图片尺寸1293x910![[福建]混搭风格海鲜主题餐厅设计施工图(附效果图)](https://i.ecywang.com/upload/1/img0.baidu.com/it/u=4122574910,3238488280&fm=253&fmt=auto&app=138&f=JPG?w=634&h=500)
[福建]混搭风格海鲜主题餐厅设计施工图(附效果图)
图片尺寸739x583
240平餐厅施工图节点大样案例赏析_餐厅_家居家装_装修
图片尺寸925x640
现代餐厅立面图
图片尺寸800x600
餐厅包间详图Ⅱ
图片尺寸1648x1165
室内餐厅设计节点大样详图施工图下载
图片尺寸1648x1165
某大型中餐厅装修设计全套施工图
图片尺寸1600x652
欧式简约西餐厅—大样节点图
图片尺寸1600x1200
酒店自助餐厅台节点详图施工图下载
图片尺寸1600x1280
本工程为家居餐厅吊顶详图,包含一层餐厅大样图,剖面图,大样图等,图纸
图片尺寸610x432
某家庭中式化餐厅结构大样详图
图片尺寸610x432
北京某饭店中餐厅室内装修全套施工图纸(含52个cad图纸)
图片尺寸1223x900
某四星级饭店中餐厅施工图及效果图(含24张)
图片尺寸1086x765
五种特色餐厅的室内装修节点详图施工图纸
图片尺寸610x416
中餐厅装修cad施工图餐厅cad图纸下载
图片尺寸1200x777
日本餐厅施工图
图片尺寸1026x739
某中餐厅室内装修图纸(含施工图jpg)
图片尺寸1361x843
全套施工图,餐厅平面布置图,立面图,节点大样图,天花布置图,地面铺装
图片尺寸1200x766