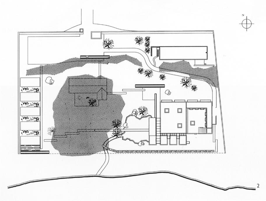
鹿野苑平面图

经典园林建筑设计鹿野苑石刻博物馆
图片尺寸1080x621
鹿野苑石刻艺术博物馆--刘家琨
图片尺寸500x694
误读刘家琨|鹿野苑石刻博物馆
图片尺寸950x546
鹿野苑石刻艺术博物馆
图片尺寸2500x1835
经典园林建筑设计鹿野苑石刻博物馆
图片尺寸1080x1025
经典园林建筑设计鹿野苑石刻博物馆
图片尺寸1080x759
艺构案例鹿野苑
图片尺寸3248x2030
鹿野苑石刻艺术博物馆
图片尺寸2000x1500
经典园林建筑设计鹿野苑石刻博物馆
图片尺寸1080x570
鹿野苑石刻艺术博物馆
图片尺寸1745x541
扫楼攻略鹿野苑石刻博物馆
图片尺寸743x413
鹿野苑石刻艺术博物馆ppt
图片尺寸1080x810
误读刘家琨|鹿野苑石刻博物馆
图片尺寸950x487
鹿野苑石刻艺术博物馆
图片尺寸912x688
鹿野苑石刻艺术博物馆
图片尺寸2151x1486
经典园林建筑设计鹿野苑石刻博物馆
图片尺寸1080x1071
建筑案例鹿野苑石刻博物馆与自然共生
图片尺寸818x356
鹿野苑石刻艺术博物馆ppt
图片尺寸1080x810
建筑案例鹿野苑石刻博物馆与自然共生
图片尺寸818x419
抄绘案例哪里找
图片尺寸1080x839