11×10米户型图

农村自建房开间8米进深10米户型图
图片尺寸1080x1920
10×11米,占地百余平清新自然小户型
图片尺寸1002x1117
农村建房开间11.5米,深10米,一楼要三个卧室,怎么设计比较好?
图片尺寸640x659
农村自建房,开间11米,进深13米,案例分享
图片尺寸1080x1440
东西14米,南北11米盖两层半,怎么设计?
图片尺寸3264x3210
11×10米农村别墅,一栋房子一个家,简约不失风格_户型
图片尺寸950x1072
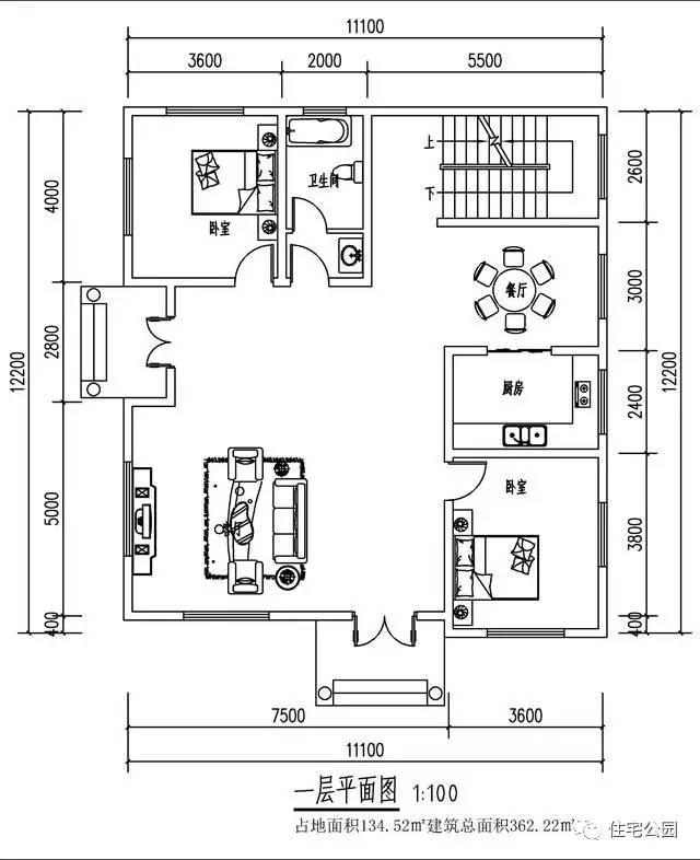
正文 此户型开间11.1米,进深12.2米,占地面积134.
图片尺寸640x786
看开间和进深,农村小别墅设计师陆续跟大家分享过不同开间的别墅户型
图片尺寸640x685
1110米自建房这样布局满足很多功能需求
图片尺寸1080x1440
宽11米的三层别墅,方正大气,9房 堂屋,农村建房必备的参考户型
图片尺寸2000x1851
设有:1客厅,1餐厅,1厨房,1卫生间,1阳台,1车库一套现代风格自建房户型
图片尺寸640x848
6套宽10米小户型别墅多建一层花6万农村到底3层好还是2层好
图片尺寸800x977
20套10x10米新款农村别墅,占地小功能挺全,小户型也迎来了春天_新房子
图片尺寸640x571
面宽10米多点,盖一栋南北通透的简欧别墅,这生活越过越有滋味
图片尺寸950x1317
别墅平面户型图
图片尺寸1314x1226
长24米宽10米建房设计图纸 长11米宽7米房屋设计图纸-图片大观-奇异网
图片尺寸800x1346
7米×11.1米小面积三层别墅/自建房首层户型设计图 施工图纸预览
图片尺寸640x447
东西14米,南北11米盖两层半,怎么设计?
图片尺寸1500x1232
11套小户型农村别墅占地80100平造价低好看不贵农村建得起
图片尺寸771x774
虽然占地面积不大,但户型方正,只要好好设计,同样可以建出一栋大气
图片尺寸640x743