16G101图集规范

16g101-1图集高清晰版pdf1 (98)
图片尺寸1466x2037
16g101-1图集高清晰版pdf1 (104)
图片尺寸1463x2038
16g101图集构造柱规范
图片尺寸1286x823
16g101-3图集高清晰版 (102)
图片尺寸1517x2145
16g101图集出cad版了看图很方便
图片尺寸1056x769
国家建筑标准设计图集16g101-1
图片尺寸2037x1465
16g-101图集变化需要掌握的要点!
图片尺寸1059x683
16g101-1图集高清晰版pdf1 (70)
图片尺寸1462x2037
16g101建筑施工系列图集16g101-1-2-3 市政工程施工质量验收规范 cjj1
图片尺寸800x800
16g101-1图集高清晰版pdf 080
图片尺寸1464x2040
砼结构16g101高清全套无水印pdf图集(评论下载)
图片尺寸1117x795
16g101建筑图集三维立体版 cad版,工程人必备的干货!
图片尺寸640x453
建筑图集16g1013建筑图集16g101一1
图片尺寸790x542
超详细16g101图集变化需要掌握的要点
图片尺寸1049x643
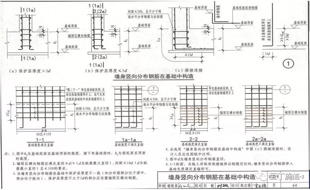
参照图集16g1013的64页在集水坑处剪力墙伸入筏板底还是集水坑底
图片尺寸840x555
1033页16g101图集学习培训合集,2.6g101图集视频讲解教程,珍品
图片尺寸640x478
河北土建,问题:16g101图集多少页,写的二层以上的剪力墙允许100搭接
图片尺寸1259x834
16g101图集全套电子版及其中英文双语版下载 完整版-规范图集|经验
图片尺寸600x430
16g101图集柱封顶构造16g101图集柱
图片尺寸1131x777
钢筋图集(钢筋图集16g101全套)
图片尺寸1200x874