380v抽屉开关结构

讲解抽屉式开关
图片尺寸640x480
讲解抽屉式开关
图片尺寸1080x810
gcs型抽屉式低压开关柜结构cad图
图片尺寸446x416
显示全部楼层 回复 1# 的帖子 看一下我们的抽屉内结构
图片尺寸1029x596
gcs抽屉柜 gcs低压开关柜 gcs配电柜
图片尺寸724x602
一种抽屉式电源控制柜的电源抽屉单元的制作方法
图片尺寸352x444
一种低压开关柜的抽屉结构
图片尺寸360x243
dw95-630b/332j船用式空气断路器框架式抽屉断路器脱扣器380v dw95
图片尺寸800x800
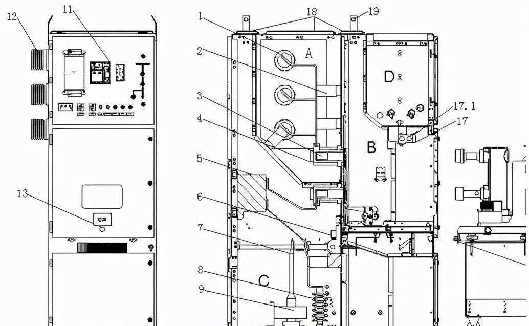
几种40.5kv移开式开关柜的分析与对比
图片尺寸551x711
华通cfw45智能型断路器框架式380v固定抽屉式开关630a-6300a 3p(固定
图片尺寸800x800
万能式断路器 框架断路器 tgw1n-1600/3p 1600a 抽屉水平 ac380v
图片尺寸800x800
来图定做抽出式抽屉式成套配电柜380v交流低压开关柜gcs/gck
图片尺寸700x525
上海人民me-1000/3 电动快速 抽屉式万能式断路器说明书,参数
图片尺寸582x800
阀门控制器电动阀执行器控制箱智能调节阀闸阀dzw控制柜 抽屉式 380v
图片尺寸800x800
组装定制xl21动力低压配电柜ggd开关抽屉柜水泵控制柜成套配电箱配置
图片尺寸790x1013
抽屉开关低压抽屉式开关柜刀开关操作把手的正确用法
图片尺寸1080x728
抽屉的电气和机械连锁抽屉单元有可靠的机械连锁位置,通过操作手柄
图片尺寸980x1313
高压开关柜kyn28a-12是什么结构?各个字母数字又代表什么意思?
图片尺寸1034x637
低压抽屉式开关柜通用图装配图
图片尺寸776x560
扬州高压开关柜抽屉-呈星电气开关柜配件-高压开关柜抽屉直销
图片尺寸699x326