L型楼梯平面图

二层自建房,砖混结构,楼梯设置在一层客厅,楼梯采用l形样式,一层至二
图片尺寸500x459
结构设计,框架结构设计,多层混凝土框架结构设计论坛_第_土木在线论坛
图片尺寸437x465
l形踏步楼梯套什么定额,如何计算?-服务新干线答疑解惑
图片尺寸1684x778
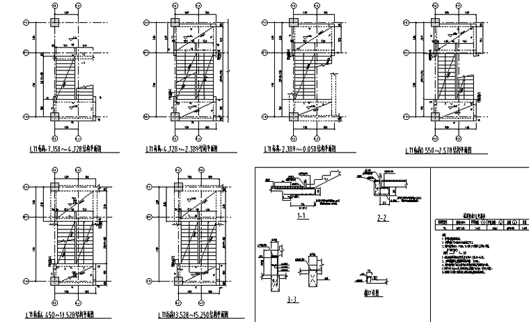
四层l型布置酒店混凝土结构施工图cad-混凝土结构施工图-筑龙结构设计
图片尺寸760x462
loft阁楼楼梯,二楼楼梯尺寸解析图.木结构l型中部转角式.设计参考.
图片尺寸367x450
loft阁楼楼梯尺寸解析图.l型转角式.设计参考.
图片尺寸564x797
这样的l形转角弧形楼梯,能用天正建筑里的楼梯能画出来吗,想看到三维
图片尺寸720x1280
咖啡厅设计-吕睿的设计师家园:::吕睿的设计师家园-中国建筑与室内设
图片尺寸660x644
螺旋楼梯图纸_结构设计_土木在线
图片尺寸1440x1020
请高手解决阁楼l型楼梯尺寸.开孔1400x1900,楼高3000,开孔款和长靠墙.
图片尺寸780x1040
某l型平面办公楼混凝土结构施工图(cad)-混凝土结构施工图-筑龙结构设
图片尺寸760x608
制图作业:楼梯答案ppt_word文档在线阅读与下载_免费文档
图片尺寸1080x810
室内设计案例分析ppt_word文档在线阅读与下载_无忧文档
图片尺寸1080x810
楼梯的画法-服务新干线答疑解惑
图片尺寸1018x778
l型楼梯配筋图_2021年l型楼梯配筋图资料下载_筑龙学社
图片尺寸640x404
阁楼l型楼梯预留口尺寸
图片尺寸262x600
楼梯平面图
图片尺寸960x1280
loft阁楼楼梯,二楼楼梯尺寸解析图.木结构l型转角式.设计参考.
图片尺寸564x399
大连实木楼梯定做/森林木实木楼梯/整体楼梯/厂家直销-精致折梯_双氙
图片尺寸750x584
建筑构造_楼梯设计专题_文档下载
图片尺寸703x637