cad砖墙怎么画
![[分享]围墙砖墙资料下载](https://i.ecywang.com/upload/1/img0.baidu.com/it/u=100822762,3241257250&fm=253&fmt=auto&app=138&f=JPEG?w=531&h=316)
[分享]围墙砖墙资料下载
图片尺寸560x333
实心砖墙工程量计算详解
图片尺寸640x430
砌体,抹灰及二次结构工程施工工艺指引,要点都总结好了!
图片尺寸730x635
有10多年经验的泥工师傅都不一定全知道_皮顺_主要用于_砖墙
图片尺寸843x526
鲁班排布在砌体排布的创新应用的好处
图片尺寸586x413
下图:石头墙垒筑过程上图:外墙改造过程照片及轴测图解:围绕原砖墙外
图片尺寸1080x1549
和调节温度,还有一定的装饰效果,与此同时,砖墙也保证了空间的私密性
图片尺寸1080x1040
纵横墙砌体的连接大样cad
图片尺寸760x598
砌筑工程的基础知识以及相关工程量计算_砖墙
图片尺寸640x831
3)在bim5d自动排砖功能中,一键导出cad排砖图,并手动修改顶砖区域.
图片尺寸536x406
source_google_cn
图片尺寸846x584![[分享]砖墙节点cad资料下载](https://i.ecywang.com/upload/1/img2.baidu.com/it/u=1412704388,565463777&fm=253&fmt=auto&app=138&f=JPEG?w=560&h=396)
[分享]砖墙节点cad资料下载
图片尺寸560x396
这3种农村盖房常用的砖墙砌法,你不会都不知道吧
图片尺寸600x450
2,钢筋砖过梁:在砌砖墙的过程中,往砖过梁的砖缝中加钢筋.
图片尺寸640x430
线与设计的火花-室内cad施工图设计课程介绍
图片尺寸1080x1527
砖墙与角钢柱连接构造节点详图
图片尺寸290x308
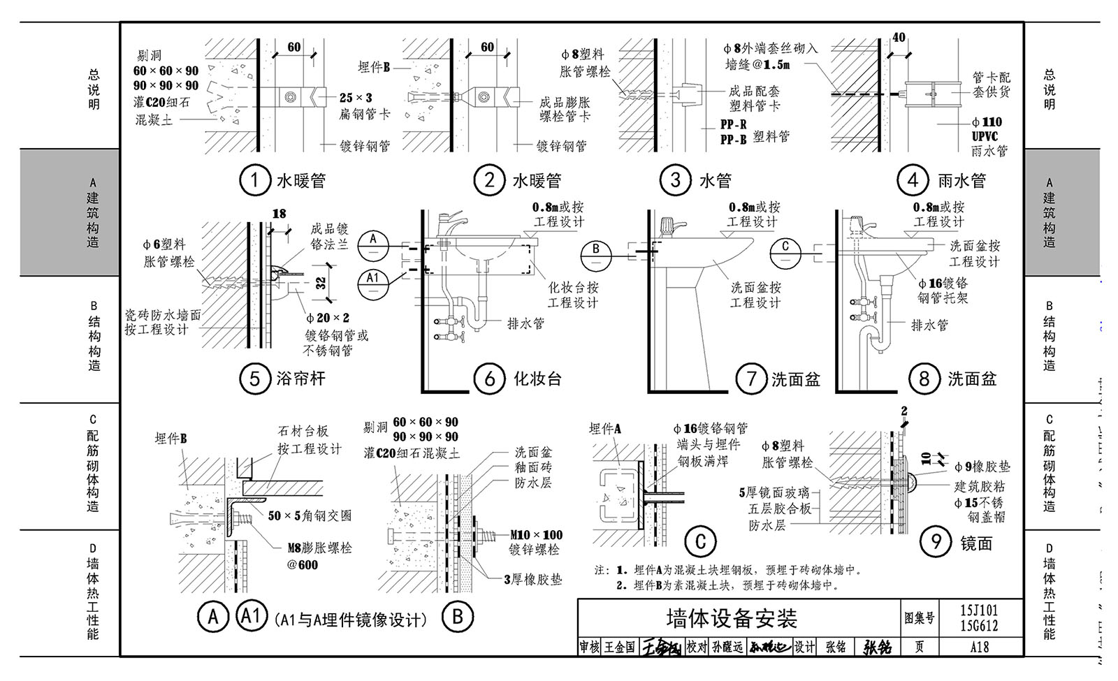
砖墙结构构造
图片尺寸1600x975
精装修图纸深化指引
图片尺寸681x413![[分享]砖墙防水节点大样资料下载](https://i.ecywang.com/upload/1/img2.baidu.com/it/u=2423886745,1310862842&fm=253&fmt=auto&app=138&f=JPEG?w=560&h=317)
[分享]砖墙防水节点大样资料下载
图片尺寸560x317
砌筑工程的基础知识以及相关工程量计算_砖墙
图片尺寸640x277