cad顶层平面图

图纸格式:jpg,cad2000 包含图片:效果图 包含: 总平面布置图
图片尺寸742x587
一层平面图
图片尺寸1000x943
屋顶平面图
图片尺寸640x653
yabu雅布北京梵悦108顶层会所cad施工图灯光设计图纸
图片尺寸3400x2200
jpg,cad2000包含图片:效果图包含: 设计说明,原始结构图,拆墙平面图
图片尺寸760x541
顶层平面图:南北侧均有露台,超大活动室,一个房间.
图片尺寸640x638![[广东]ccd-深圳平安金融中心顶层会所cad平面图](https://i.ecywang.com/upload/1/img0.baidu.com/it/u=4277390718,2183680877&fm=253&fmt=auto&app=138&f=JPEG?w=625&h=500)
[广东]ccd-深圳平安金融中心顶层会所cad平面图
图片尺寸760x608
1-2层,顶层平面图(平面布置图,天花布置图,地坪饰面图,隔墙尺寸图
图片尺寸760x537
233㎡ 挑空设计,这样的顶层公寓更实用
图片尺寸650x460
最小尺寸要多少?
图片尺寸572x592
楼梯详图 一层结构布置图 二层板配筋图 顶层
图片尺寸617x442
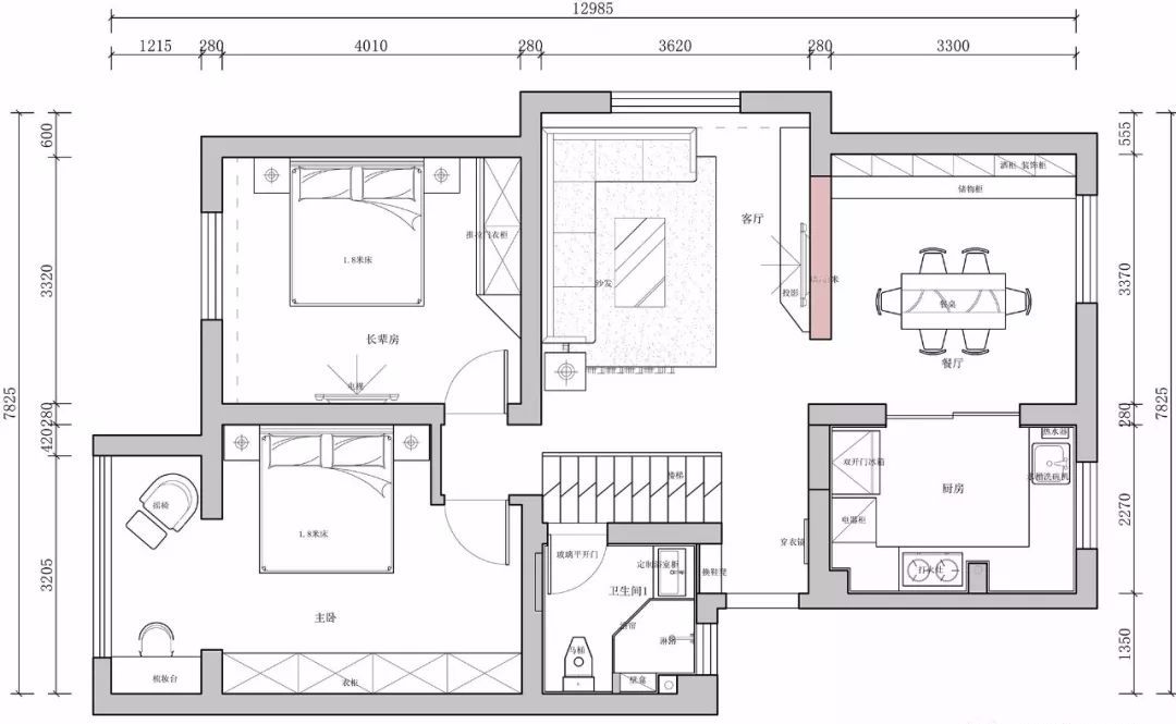
顶层三个卧室分布,有个休闲娱乐的吧台,可以约好友在露台上烧烤,喝酒
图片尺寸1000x1129![[分享]家装剖面cad资料下载](https://i.ecywang.com/upload/1/img2.baidu.com/it/u=1634409501,3833693033&fm=253&fmt=auto&app=138&f=JPEG?w=667&h=500)
[分享]家装剖面cad资料下载
图片尺寸3000x2250
因房面积比较大,并且位于顶层.
图片尺寸3361x2334![[分享]寺庙效果图平面图立面图资料下载](https://i.ecywang.com/upload/1/img0.baidu.com/it/u=1148208714,2129479226&fm=253&fmt=auto&app=120&f=JPEG?w=500&h=375)
[分享]寺庙效果图平面图立面图资料下载
图片尺寸760x570
平面图整体外观效果虽为简欧风格,但能很好地融于当地整体环境,整体
图片尺寸1582x1367
二楼平面图一楼平面图卫生间以玻璃隔断作为干湿分离,整体舒适宽松的
图片尺寸640x472![[分享]户型布置平面图cad资料下载](https://i.ecywang.com/upload/1/img1.baidu.com/it/u=3245368973,4203573023&fm=253&fmt=auto&app=138&f=JPG?w=611&h=500)
[分享]户型布置平面图cad资料下载
图片尺寸644x527
放肆年末热力全开丨祥源金港湾瞰湖顶层标准层火爆热销中
图片尺寸692x859
家装| 120m小清新北欧风,顶层带阁楼小复式!
图片尺寸1080x665