fg01~05人防钢筋图集

人防临空墙的锚固长度包括伸入基础的竖直长度吗哪里有依据
图片尺寸1229x868
人防门框墙的钢筋怎么输?
图片尺寸889x592
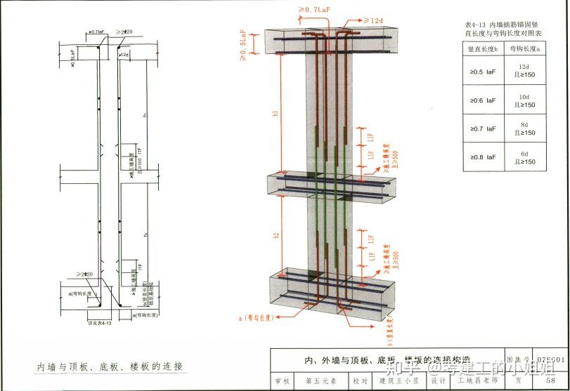
人防墙钢筋
图片尺寸425x538
人防钢筋节点求教
图片尺寸970x405
人防墙体水平钢筋锚入两侧墙体14墙体净宽
图片尺寸1042x723
07fg01-05系列:三维全彩bim人防图集(21新版),立体图片超清晰
图片尺寸1112x755
老师们看下人防门框墙上部构造的拉筋在图集中显示的纵筋间距2倍于3筋
图片尺寸948x595
人防门框墙墙肢水平筋
图片尺寸1192x874
地下室人防门框墙钢筋怎么设置
图片尺寸1447x875
让你彻底学会人防门框墙钢筋算量,附图纸
图片尺寸640x397
让你彻底学会人防门框墙钢筋算量附图纸
图片尺寸906x590
地下室人防门框墙钢筋怎么设置
图片尺寸1242x719
人防门框如何处理?
图片尺寸962x588
人防工程结构复杂抽象fg0105三维人防立体图集bim版直观看图
图片尺寸831x577
07fg01-05系列:三维全彩bim人防图集(21新版),立体图片超清晰
图片尺寸1093x745
07fg0105系列三维全彩bim人防图集21新版立体图片超清晰
图片尺寸1086x669
人防墙框的钢筋如何定义?
图片尺寸1029x754
标准图集 国标图集 人防 人防专业 fg01~05(2007年合订本):防空地下
图片尺寸2500x1793
人防工程结构复杂抽象fg0105三维人防立体图集bim版直观看图
图片尺寸811x557![[分享]人防临空墙图集资料下载](https://i.ecywang.com/upload/1/img0.baidu.com/it/u=3343532960,3969324791&fm=253&fmt=auto&app=138&f=JPG?w=500&h=889)
[分享]人防临空墙图集资料下载
图片尺寸720x1280