pc构件图纸图解

装配式剪力墙构件详图
图片尺寸1640x1171
三层预制构件布置图
图片尺寸1008x488
装配式建筑主体施工之pc构件吊装
图片尺寸705x914
某装配式社区住宅楼pc深化设计施工图深化图纸(平立剖,节点图,构件图)
图片尺寸614x506
装配式建筑异形pc构件吊装技术分析
图片尺寸655x599
竖向构件连接详图
图片尺寸1640x1171
预制构件剖面图2
图片尺寸1640x1171
预制剪力墙与现浇构件的横向连接
图片尺寸1640x1171
mcy,ycy,scy,pcy,bcy,mycy柱塞泵|价格,厂家,图片-商虎中国
图片尺寸768x645
装配式剪力墙结构商品房pc深化设计施工图(2016)
图片尺寸1640x1171
pc构件图纸问题
图片尺寸1137x685
某框架结构建筑装配式pc构件详图 - 结构图纸 - 沐风网
图片尺寸645x498
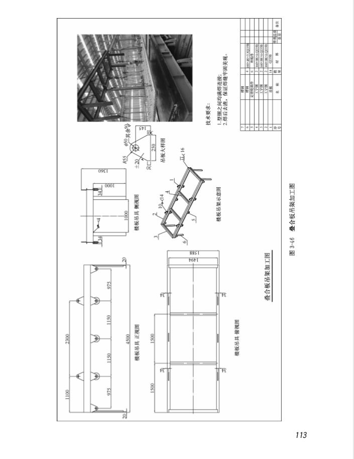
预制装配式结构pc吊装施工工艺
图片尺寸536x580
产品中心
图片尺寸665x450
优秀的机械设计从一张零件图做起
图片尺寸673x1913
技术详情
图片尺寸577x264![[施工图]装配式结构pc方案](https://i.ecywang.com/upload/1/img0.baidu.com/it/u=138736582,870505716&fm=253&fmt=auto&app=138&f=JPG?w=1216&h=500)
[施工图]装配式结构pc方案
图片尺寸1296x533
机械设计课程设计任务安排2015-2016-1
图片尺寸1080x810
模具设计经典案例汽车门板下本体模具的设计
图片尺寸991x875
全电脑横机使用说明书三
图片尺寸584x629