pid工艺流程图软件

二硫化碳-四氯化碳精馏塔pid图
图片尺寸1311x927
a1-工艺及管道仪表流程pid图
图片尺寸820x580
注射用水生产工艺流程(pid图))
图片尺寸820x606
流程图.jpg
图片尺寸1682x618
硫酸的生产工艺流程图pid硫磺制酸
图片尺寸1317x931
a1-带控制节点工艺流程图pid
图片尺寸820x540
高温变换反应段a(44r001b)工艺流程图
图片尺寸371x436
天然气液化工艺流程图 (pid)
图片尺寸918x1158
a1-工艺管道仪表流程pid图
图片尺寸687x495
工艺流程图用什么软件做简单易上手的流程图工具
图片尺寸1440x1020
仪表流程图(pid)
图片尺寸1046x766
流程图有了
图片尺寸816x450
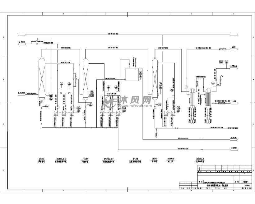
乙炔清净pid(净化)
图片尺寸820x656
年产9000吨阿司匹林车间工艺流程图
图片尺寸618x463
a1-苯酐管道仪表流程pid-04图
图片尺寸820x579
pid图工艺仪表流程图基础知识培训
图片尺寸1200x831
6 三轮f车模pid控制流程图
图片尺寸2400x970
pid工艺流程图
图片尺寸1095x768
双氧水及原设计工艺流程pid
图片尺寸820x527
pid控制算法流程图.
图片尺寸454x509