软卧结构图

梦想系列【30天发货】 道奇蓝 g035床头柜 1500mm*2000mm 框架结构
图片尺寸790x1111
供应鹏逸家居真皮软床py-011
图片尺寸750x729
8米特价简约洛伦(1.8米无床箱)
图片尺寸750x429
软卧车厢号码分布,不同位置舒适度不同,睡眠有障碍的乘客这样选
图片尺寸640x375
多功能软卧具-爱企查
图片尺寸1920x1306
列车高级软卧上下铺排号
图片尺寸700x159
求卧铺车厢图片
图片尺寸396x256
个人经验拉萨软卧分享7515
图片尺寸1080x810
软卧
图片尺寸493x327
火车04软卧
图片尺寸1080x1439
图为青藏铁路列车内部结构.
图片尺寸450x277
上海到北京的t110次列车软卧环境怎么样
图片尺寸1145x778
第一次坐软卧注意些什么 1
图片尺寸1080x540
第一次坐软卧
图片尺寸1080x809
火车软卧是什么样子(软卧车厢号码分布)
图片尺寸1280x720
火车卧铺座位分布图号,硬卧隔间6床铺/软卧有门4床铺(对比图)-豆米网
图片尺寸355x428
▽【下图为软卧】▽【下图为硬卧】看,人家也就是3米左右的层高,空间
图片尺寸492x650
软卧车厢 软卧车厢号码分布图
图片尺寸1080x1056
软卧并不软为啥比硬卧贵那么多答案全在这
图片尺寸643x358
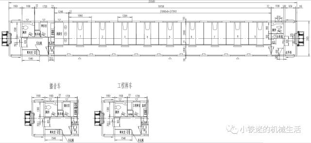
25t型软卧车 定员:36人
图片尺寸640x295