一层半的户型图

新农村自建房一层半小别墅外观效果图 户型图 全套施工图纸
图片尺寸1636x1380
12米x11米农村一层半小别墅户型图
图片尺寸800x838
农村一层半别墅户型图
图片尺寸800x588
别墅图一介绍:乡下建房一层户型图
图片尺寸640x522
户型为农村一层半小别墅设计图(一层带阁楼),红色墙砖的纹理显得艳丽
图片尺寸640x587
6米(含屋顶);别墅效果图一层户型图设计功能:一层户型:客厅,厨房,餐厅
图片尺寸640x497
农村自建房设计图一层半户型图
图片尺寸800x596
森态st105新款2017农村房屋一层半别墅设计图 小户型设计带阁楼图
图片尺寸1585x1578
具有浓浓的花园别墅感,这样建的人非常多,是很受欢迎的一款别墅户型
图片尺寸660x647
别墅图一介绍:乡下建房一层户型图
图片尺寸640x596
6米(含屋顶); 设计功能: 一层户型:玄关,客厅,厨房,餐厅,卧室(带卫生
图片尺寸640x500
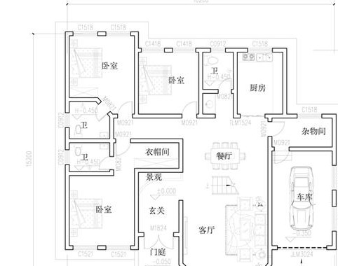
农村自建房一层半小洋房,也有四房三卫
图片尺寸640x628
一层半别墅户型图
图片尺寸640x507
农村住房一层半造型别墅设计图造价仅需13万
图片尺寸750x579
农村一层半自建房户型图展示
图片尺寸640x553
新农村自建房一层半小别墅外观效果图 户型图 全套施工图纸
图片尺寸1532x1236
一层半小楼户型图
图片尺寸640x602
农村一层半现代别墅设计-外观时尚新颖
图片尺寸800x561
乡下建房一层半户型图占地160平米带阁楼
图片尺寸750x680
户型 户型图 平面图 482_380
图片尺寸482x380