一进四合院平面图

一进一层四合院全套图纸
图片尺寸1024x1188
北京四合院的基本布局(一进院/二进院) 四合院的基本布局 老北京
图片尺寸2261x1280
中国的四合院,这篇是我看过介绍最全的了,超详细,长见识!
图片尺寸640x1913
四合院的起源与演变
图片尺寸640x1068
分享一套二进院的四合院上1下1
图片尺寸1080x1439
一进四合院平面图一主一次并列四合院影壁花心资源来源于网络分享只供
图片尺寸640x1086
四合院
图片尺寸693x789
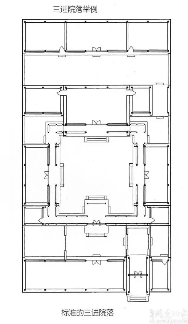
北京四合院—进院平面图 一进院 二进院 三进院
图片尺寸1712x1280
占地16x39一层自建四合院设计全套施工图
图片尺寸985x1600
一进四合院和三合院平面图
图片尺寸600x1543
面宽1950米进深3165米一进四合院
图片尺寸1080x810
宅基地宽二十八米长二十一米想建个中式四合院该怎么设计
图片尺寸789x1000
重庆农村四合院设计平面图
图片尺寸800x623
一层徽派四合院平面图
图片尺寸800x657
北京四合院—进院平面图 一进院 二进院 三进院
图片尺寸1280x1280
号061一进两层四合院
图片尺寸1024x1380
大家都说四合院的设计图还没有看够?没有关系,它来了!
图片尺寸640x650
一进四合院和三合院平面图一进四合院平面图一主一次并列四合院影壁花
图片尺寸640x1103
大家都说四合院的设计图还没有看够?没有关系,它来了!
图片尺寸640x606
四合院建筑设计工程
图片尺寸1000x1132