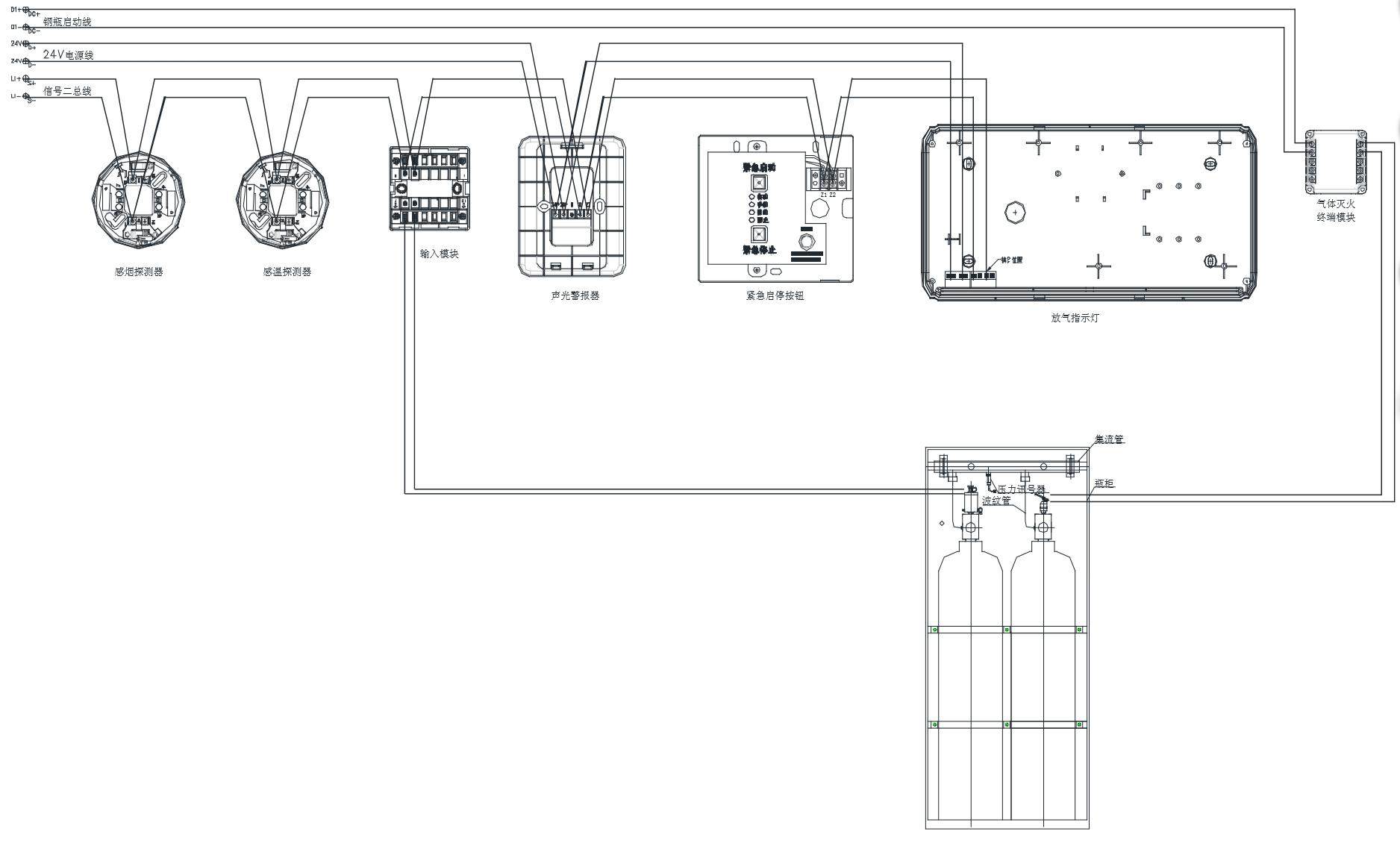
七氟丙烷钢瓶接线图

老师气体灭火这些红线都是什么要计算吗
图片尺寸1000x561
柜式七氟丙烷灭火系统
图片尺寸1017x576
管网式七氟丙烷
图片尺寸858x355
七氟丙烷灭火系统图
图片尺寸600x391
泰和安消防气体灭火控制器钢瓶驱动盘装置控制系统主机tx3042b
图片尺寸1876x1130
连城
图片尺寸640x1360
柜式七氟丙烷灭火系统接线示意图
图片尺寸669x304
管网式七氟丙烷气体灭火系统装置灭火器材消防设备厂家直销3c认证
图片尺寸1180x720
cl-530g按钮指示灯
图片尺寸1019x706
单元独立式七氟丙烷气体灭火系统示意图
图片尺寸750x480
柜式七氟丙烷气体灭火装置150l柜式灭火装置
图片尺寸910x505
zh6727输入输出模块与气体钢瓶接线
图片尺寸1080x623
七氟丙烷灭火剂充装
图片尺寸750x556
柜式七氟丙烷灭火装置的组成部件有哪些七氟丙烷厂家告诉你
图片尺寸600x654
瑞港直销柜式七氟丙烷自动灭火装置 70l
图片尺寸750x480
120l 柜式七氟丙烷灭火装置
图片尺寸780x1064
6es7307-1ka02-0aa0
图片尺寸554x585
厦门无管网柜式七氟丙烷气体灭火装置灭火器消防设备预置式双瓶组
图片尺寸860x396![[苏州]某酒店给排水设计图纸(七氟丙烷自动灭火系统)](https://i.ecywang.com/upload/1/img1.baidu.com/it/u=375858397,4160043726&fm=253&fmt=auto&app=138&f=JPEG?w=560&h=448)
[苏州]某酒店给排水设计图纸(七氟丙烷自动灭火系统)
图片尺寸560x448
柜式七氟丙烷药剂充装无管网气体灭火装置悬挂式七氟丙烷hfc227ea
图片尺寸750x575