上悬窗图纸

悬窗
图片尺寸851x787
图中的外悬窗如何绘制?-服务新干线答疑解惑
图片尺寸755x545
一种装配挂钩式幕墙上悬窗
图片尺寸1857x1878
厂房上悬窗高窗通风排烟手动开窗器70度开启手摇链条式开窗器开窗机
图片尺寸750x1053
澳标系列铝合金悬窗开启方式.png
图片尺寸1028x866
cn207406220u_一种便于清洗的上悬窗有效
图片尺寸1796x1954
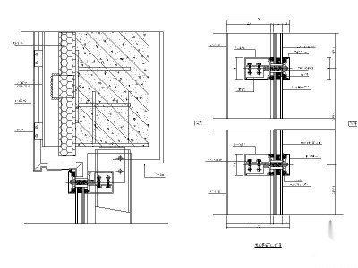
上悬窗节点图.jpg
图片尺寸760x608
手摇链条开窗机手动开窗器手摇杆式开窗器 手摇链条开窗机二控一上悬
图片尺寸990x432
一种平开上悬窗的制作方法
图片尺寸866x1000
上悬
图片尺寸630x715
开窗平内手摇机上悬窗手动排烟装置联动高窗门窗控制器
图片尺寸750x789
一种幕墙内隐形上悬开启窗结构的制作方法
图片尺寸605x1000
一种平开上悬窗
图片尺寸864x1000
厂家直销出口铝合金上悬窗 凤铝断桥铝均有防盗网 配纱窗阳台防尘
图片尺寸750x750
挂钩式幕墙上悬窗
图片尺寸540x736
一种新型铝包木上悬翻转窗的制作方法
图片尺寸821x1000
请问图纸所示的上悬窗属于平开窗吗套定额用什么子目广东2010定额
图片尺寸701x524
cn202450977u_推拉上悬窗失效
图片尺寸800x853
上悬窗节点图和大样图下载_【知末网cad图纸库】第1页
图片尺寸400x300
整体挂钩式防脱上悬窗系统
图片尺寸415x869