两梯三户楼道布局

必看!柳州人的记忆,楼道里的岁月!
图片尺寸1280x878
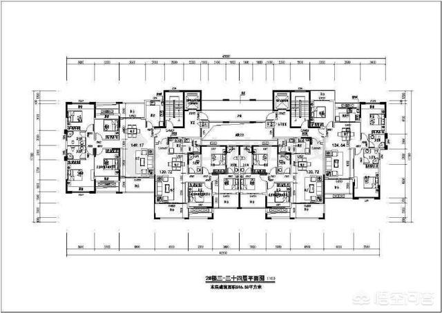
方案,其中含三室二厅,二室二厅多面积多户型,各面积指标详细,布局合理
图片尺寸610x432
两梯三户和两梯四户的差别同一条件下两梯三户更具优势
图片尺寸640x454
市场上两梯三户,且能做到独门独户的交通核布局已属罕有.
图片尺寸2481x1754
某地区高层两梯三户几种户型平面图
图片尺寸610x432
财经 正文 梯户比并不会影响房子的户型,但会影响楼栋结构和户型布局.
图片尺寸640x290
两梯三户的南户正对着电梯门.
图片尺寸740x539
请大家帮忙看一下两梯三户,中间户和西边户哪个好一点?
图片尺寸1080x1538
一梯两户or两梯三户,教你如何考察梯户比!
图片尺寸548x327
买房选一梯两户还是两梯三户
图片尺寸624x546
两梯三户这样的买中间户好不好?
图片尺寸519x323
梯户比对居住有何影响?
图片尺寸800x762
最牛一梯三户是这样布局的值得所有人学习
图片尺寸909x1001
最牛一梯三户是这样布局的,值得所有人学习
图片尺寸640x472
原创两梯三户和两梯四户的差别同一条件下两梯三户更具优势
图片尺寸550x366
最走心的高层住宅一梯三户布局设计
图片尺寸640x543
买房子是两梯三户好还是两梯四户好
图片尺寸640x454
最走心的高层住宅一梯三户布局设计
图片尺寸640x381
最走心的高层住宅一梯三户布局设计
图片尺寸640x486
卫·没有暗房99面积:141平米【单位房公摊小·涂料电梯·楼道翻修】
图片尺寸1080x810