中国古宅平面图

《那年花开月正圆》里大宅院的门道
图片尺寸1047x1060
历久弥新的四合院,大宅院文化亘古不变
图片尺寸714x875
卷棚垂花门正立面背立面平面图3平面图构造及做法之一构造及做法之二
图片尺寸494x725![[古建史论] 京城宅院民居之原貌描绘](https://i.ecywang.com/upload/1/img2.baidu.com/it/u=3828481165,2065407453&fm=253&fmt=auto&app=138&f=JPEG?w=600&h=420)
[古建史论] 京城宅院民居之原貌描绘
图片尺寸600x420
模拟人生中式古宅
图片尺寸1080x1439
高家大院一座历经400余年盛衰兴废的古宅
图片尺寸1440x1080
恭王府平面图7,带花园住宅封建社会的大户人家,有兄弟二人同居一处的.
图片尺寸450x463
郑希成绘标准二进四合院东城区石雀胡同
图片尺寸600x420
古建筑的基础知识ppt
图片尺寸1080x810
从平面图上不难看出北京四合院在平面布局上以院为特征,大宅沿纵向
图片尺寸640x1103
古代庄园布局
图片尺寸490x467
中国传统四合院的风水布局
图片尺寸690x508
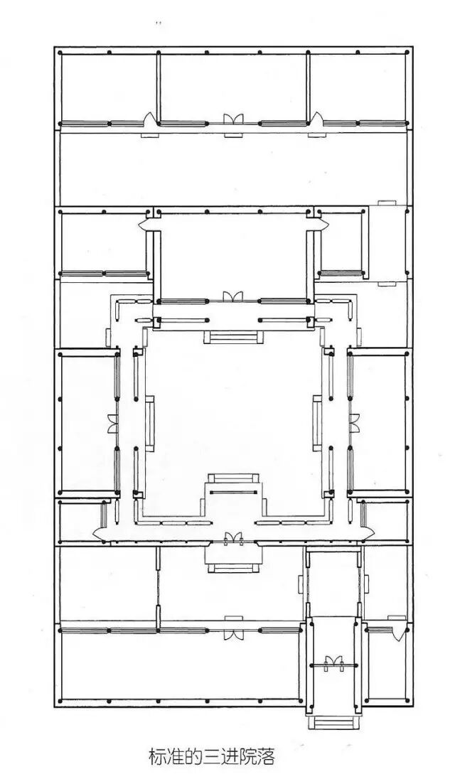
常见的三进院落布局宅院02古人盖屋首先要在城中选一块地,古代城市为
图片尺寸436x737
西安美食街区藏着一座豪华古宅是名门望族主人为皇帝钦点榜眼
图片尺寸640x818
山西县城的建筑和民居宅院,最有特色的要数平遥县城,是中国古代县城的
图片尺寸1250x795
西门庆花园和宅院平面图完整版第2页
图片尺寸370x912
什么是五进宅院
图片尺寸828x674
安徽自建二进门三庭院中式私宅27x43米丨建筑师作品展
图片尺寸775x1046
古代生活
图片尺寸750x728
古代宅院大小,都是三进,五进,七进,到底是怎么计算的?
图片尺寸572x394