中式庭院门洞尺寸

200*200cm月亮门砖雕
图片尺寸750x927
明清古典园林庭院复古砖细e门 月洞门镂空月亮门圆形青砖拱门苏式
图片尺寸700x700
如何测量门洞尺寸
图片尺寸1199x882
2,门洞的墙体厚度:水平测量墙体厚度,选取五个以上的测量点进行测量
图片尺寸499x298
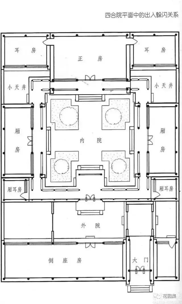
中国古代的庭院及相关建筑
图片尺寸560x564
长沙远旺锌钢庭院大门好品推荐13787191263黎经理
图片尺寸969x697
别墅大门门楼设计2个实例详解_老榆木大门,仿古大木门,中式仿古大门
图片尺寸600x456
计算标准为门洞净空尺寸,门洞高用h表示,宽用w表示.
图片尺寸1334x1010
大门宽45533,那高度是多少呢?
图片尺寸550x335
桃花源11号-1中式四合院建筑工程
图片尺寸1000x848
非标尺寸大门规范,与门打交道的看看.
图片尺寸640x466
庭院门
图片尺寸551x389
中式庭院门楼围墙大样图
图片尺寸477x685
竹制大门门廊设计cad立面图
图片尺寸700x385
编号053二进一层四合院全套施工图
图片尺寸1024x1173
门洞测量
图片尺寸750x750
它是面向外部的一道门,它的尺寸大小不仅关乎着家居人员的进出方便性
图片尺寸640x851
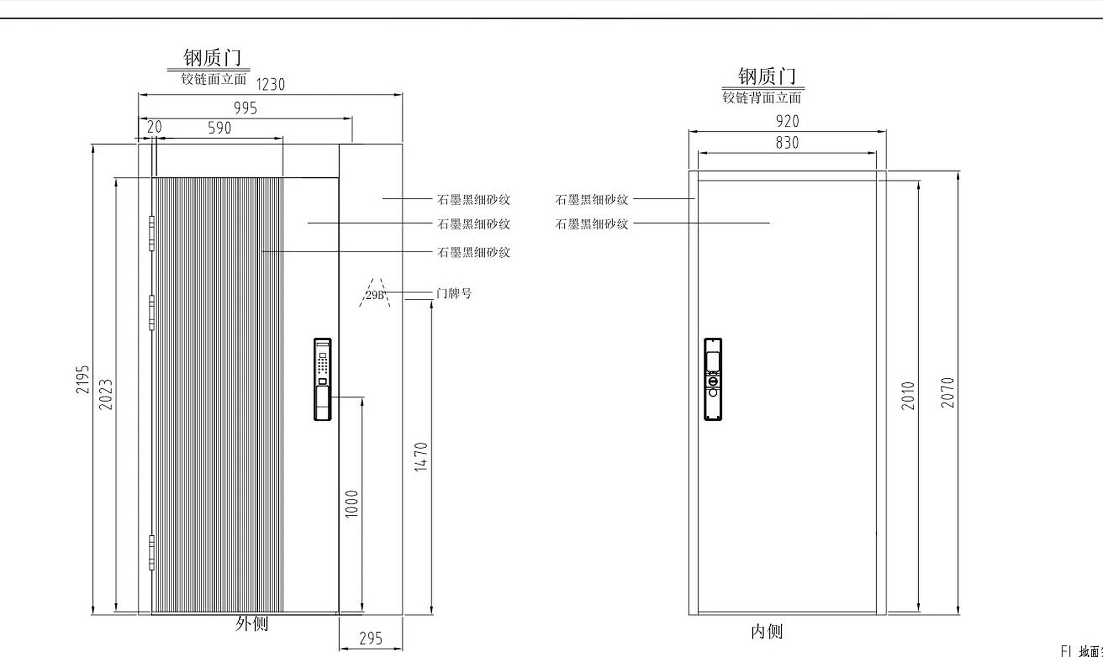
我的风水大门尺寸搞定了 和做门窗商家,项目经理了解对齐,研究了好久
图片尺寸2148x1280![古典中式风格四合院大门cad施工图[原创]](https://i.ecywang.com/upload/1/img2.baidu.com/it/u=455719994,83527164&fm=253&fmt=auto&app=138&f=JPEG?w=500&h=387)
古典中式风格四合院大门cad施工图[原创]
图片尺寸700x542
中式四合院大揭秘,你所不知道的这里都有
图片尺寸640x1068