举升机工位画线图

高昌gc30sl修理厂用超薄小剪式举升机无需挖槽
图片尺寸960x1415
5sb双拉伸小剪举升机
图片尺寸960x1326
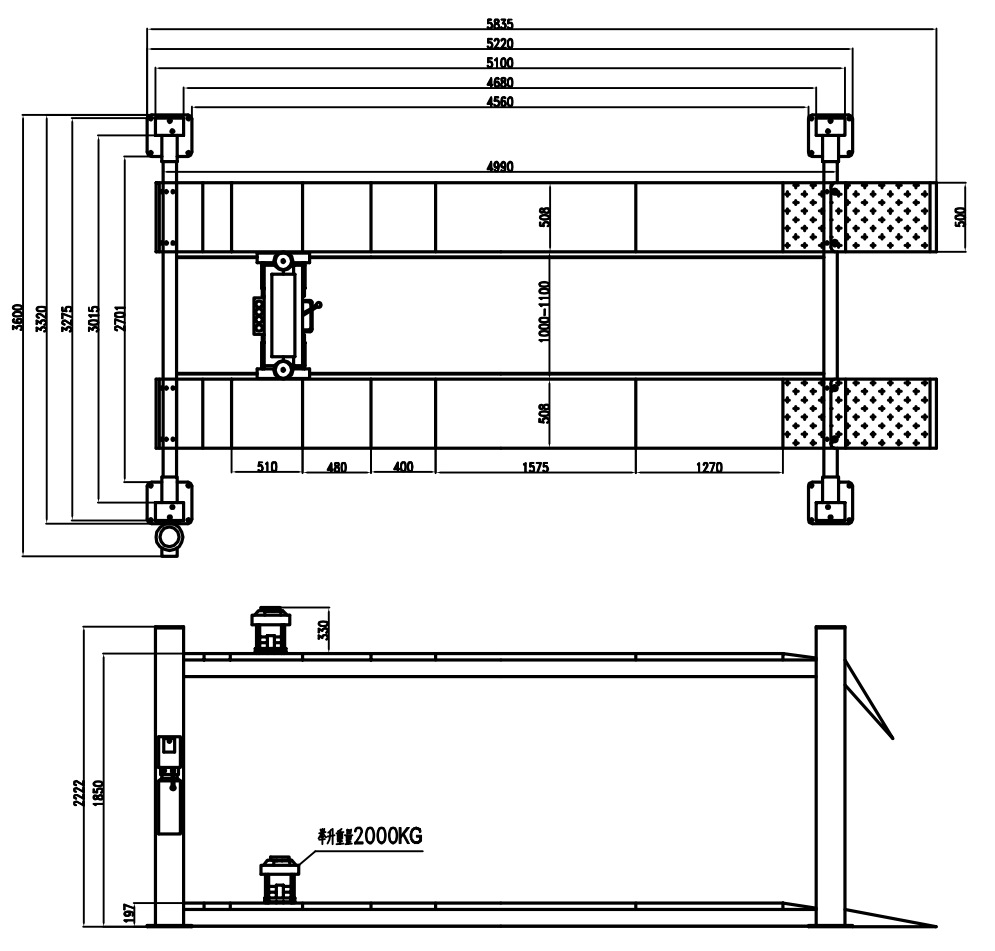
zs-qjy40fb四柱举升机 适应多种车型进行车辆定位
图片尺寸700x466
皖安qjy223双柱举升机手动双边解锁
图片尺寸960x1314
小型起重机起升使用变频器小型起重机起升使用变频器
图片尺寸554x589
0双柱举升机载重4吨,安装技术要求:1,工位不小于4000*7000(mm×mm);2
图片尺寸960x1356
5t四柱举升机(气动解锁带二次举升小车以及侧滑板定位仪用)
图片尺寸995x951
5-a4龙门举升机载重4吨
图片尺寸960x1393
大通依维柯汽车专用5吨龙门举升机 商务车检修大举升机 发送全国
图片尺寸1357x1920
> 液压双柱龙门举升机
图片尺寸600x913
上海上盟sm-z03超薄小剪式举升机
图片尺寸800x1068
优耐特小剪e30举升机地基图
图片尺寸713x676
安装要求: 在标准维修工位(4m*7m)上,举升机安装的混凝土厚度应大于
图片尺寸680x680
如何安装和调整汽车举升机
图片尺寸640x444
双柱举升机安装尺寸图地基尺寸图
图片尺寸890x552
皖安qjy030c超薄小剪举升机
图片尺寸960x876
液压传动式双柱举升机抖动故障的解决方案
图片尺寸880x1021
如何安装和调整汽车举升机
图片尺寸600x345
通常配置剪式平板举升机或四柱平板式举升机,工具车,三合一绕线器
图片尺寸1200x622
龙门举升机升降机
图片尺寸720x1202