九进四合院平面图

一言不合就几个亿的四合院竟然有这些学问
图片尺寸640x1913
窥探民居院落的奥秘
图片尺寸580x442
可是呢,在现实中能够拥有这么一块土地的人并不多,很多人喜欢四合院
图片尺寸699x800
北京四合院的基本布局(一进院/二进院) 四合院的基本布局 老北京
图片尺寸2261x1280
项目原始平面图用当代的建筑形式,给予传统四合院府邸般归家之感.
图片尺寸992x739
九进四合院设计
图片尺寸375x640
带你参观古往今来的四合院
图片尺寸640x512
典型四合院布局
图片尺寸390x652
传世好宅当选四合院,古色古香百看不厌
图片尺寸720x1203
北京四合院的建筑有什么特点?
图片尺寸712x401
史上最全四合院知识2: 贾母住的是豪华版四合院?
图片尺寸600x600
【摘录写文参考】明代四合院的格局
图片尺寸1126x1080
博大精深的中式四合院设计文化
图片尺寸500x1094
什么是四合院?
图片尺寸640x801
三进院落的平面图正式的四合院,一户一宅,平面格局可大可小.
图片尺寸354x562
关键词:古典建筑地产元素门院手绘线条房子四进四合院图精灵为您提供
图片尺寸519x393
四合院是中国特有的传统院式建筑至今已有3000多年的历史
图片尺寸505x428
星晴的相册-『浙江民居的设计巧思和京城民居之原貌』
图片尺寸600x420
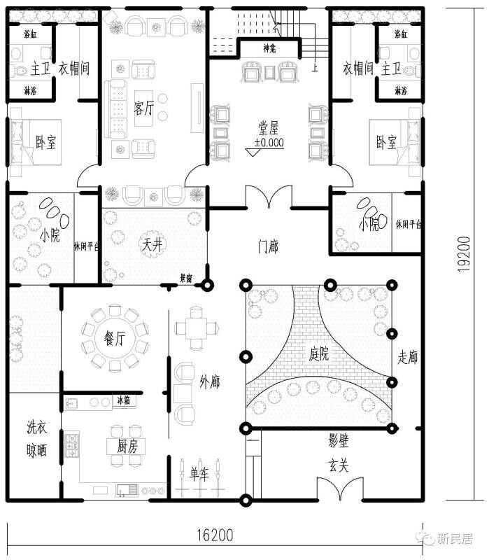
农村最适合四合院图片含平面图及中式装修风格效果图
图片尺寸640x885
北京四合院平面图
图片尺寸578x455