产业园平面

智慧网谷小镇创新产业园规划出炉
图片尺寸1080x763
青岛西海岸创智产业园
图片尺寸1200x675
苏家屯智能制造产业园平面图
图片尺寸1019x1103
design产业园小清新景观彩平分享
图片尺寸1080x763
重庆·南川区现代智慧科技产业园 | 中衡卓创
图片尺寸1080x610
产业园案例
图片尺寸5787x4091
园区平面图
图片尺寸1078x804
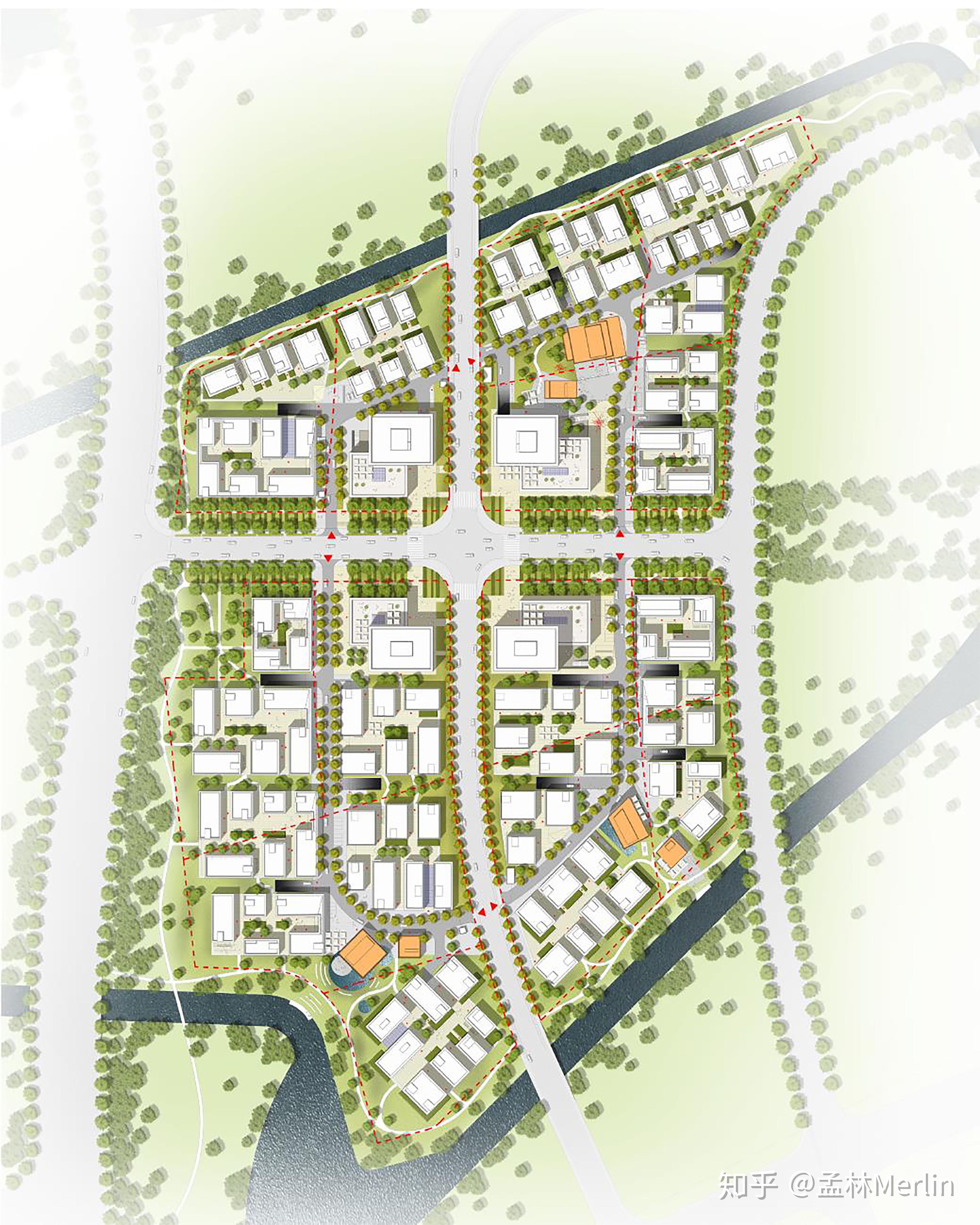
台山广海湾工业园区管理委员会 - 现在哪个app能买足彩人民政府门户
图片尺寸1372x1926
舒城经济开发区:安徽舒城县五金产业园规划调整方案公示
图片尺寸11701x8278
港青健康产业园规划设计跳开设计以人为本
图片尺寸740x915
现代产业服务园3k深圳市星河雅宝高科技软件园区平面4k武汉市江夏云
图片尺寸3998x4998
产业园景观
图片尺寸1280x904
可持续发展园区的生态新模式济南国际医学科学中心精准医学产业园区
图片尺寸1080x665
蚂蚁乐居智能制造产业园项目设计方案总平面图批后公布
图片尺寸1280x1666
案例产业园案例选集第一期附抄绘图集
图片尺寸6289x4448
沉浸式园区苏州人工智能产业园
图片尺寸1415x1000
贺州生态产业园职工文化中心项目规划及建筑设计方案批前公示
图片尺寸6428x4540
上海闵行区颛桥智慧城市多媒体文化产业示范园
图片尺寸1227x1537
绩溪县长三角绿色农产品加工产业园项目设计方案批前公示
图片尺寸1280x905
长沙中建智慧产业园(东区)
图片尺寸1632x1224