人防门钢筋图集

钢筋混凝土人防门
图片尺寸900x675
人防门
图片尺寸1246x751
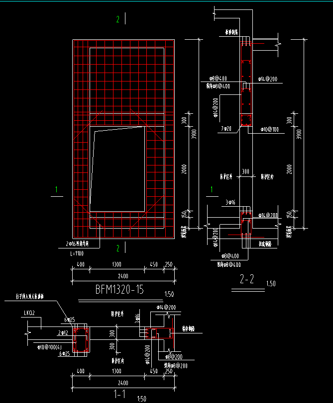
人防门 钢筋混凝土单扇防护密闭门
图片尺寸560x420
4,人防门门洞四角及穿墙套管的四周内外侧,应配置2Φ16的斜向加强钢筋
图片尺寸1080x1440
07fg1~5系列人防工程图集,高清图文详解,工程人可人手一份
图片尺寸982x689
1,人防门的洞口插筋及门槛钢筋设置
图片尺寸640x412
人防图集 - 2020年最新商品信息聚合专区 - 百度爱采购
图片尺寸986x691
工程人必备07fg15系列人防图集合订本pdf格式限时分享
图片尺寸720x493
老师们看下人防门框墙上部构造的拉筋在图集中显示的纵筋间距2倍于3筋
图片尺寸948x595
钢结构人防门的制作方法与工艺
图片尺寸897x1000
某6级防护密闭门框墙配筋节点构造详图
图片尺寸826x580
地库人防钢筋绑扎
图片尺寸2667x2000
不允许遗漏,并给人防门预留合理的保护层人防门槛钢筋安装地漏管必须
图片尺寸691x877
人防门怎么定义,标注的钢筋都叫什么
图片尺寸669x811
人防门框如何处理?
图片尺寸962x588
人防门框墙水平筋及垂直筋的布置范围
图片尺寸575x557
1,人防门的洞口插筋及门槛钢筋设置
图片尺寸549x678
钢筋混凝土人防门
图片尺寸588x500
让你彻底学会人防门框墙钢筋算量,附图纸_冲击波
图片尺寸641x471
钢筋,还得请教您下,谢谢您!
图片尺寸1440x1665