会客厅平面图

接待会客厅平面规划 概念方案
图片尺寸1080x1439
会客厅半包围式方形多人沙发茶几地毯组合平面cad图块
图片尺寸800x696
住宅客厅常用九种布局参考
图片尺寸1080x1439
小型会客厅
图片尺寸975x622
客厅平面图
图片尺寸690x651
跟随内心的客厅应该如何设计
图片尺寸1080x763
本项目位于厦门的"城市客厅"白鹭洲地带,设计师在平面规划之初,有效
图片尺寸800x603
平面布局图
图片尺寸1000x1400
渭南万科城市会客厅艺境相容方得自由
图片尺寸1047x508
平面图下载
图片尺寸2692x2459
5平面布置.jpg
图片尺寸4851x2967
平面布局图
图片尺寸1000x564
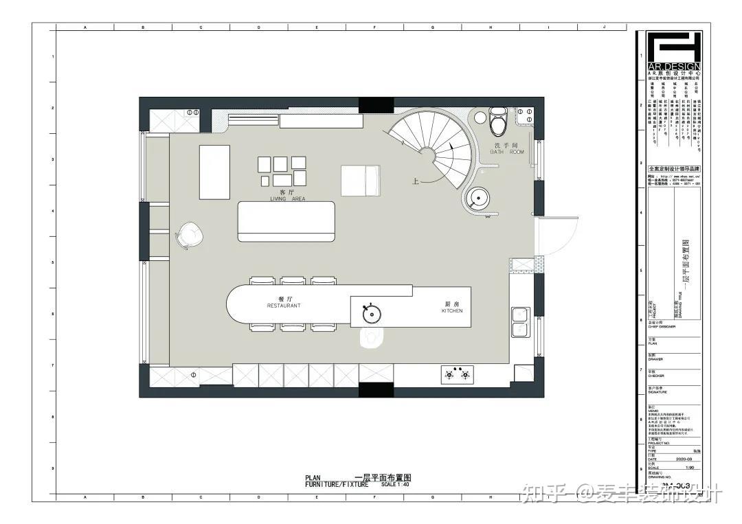
某别墅一层会客厅平面图
图片尺寸1024x680
渭南万科城市会客厅艺境相容方得自由
图片尺寸1080x522
美巢罗马假日大平层装修效果图2个休闲会客区的不同功能get
图片尺寸700x519
叶子会客厅案例作品推荐成都壹贰设计作品保利国宾
图片尺寸4961x3508
东城高田大厦500㎡现代前卫混搭新中式装修效果图
图片尺寸7837x3001
简约客厅
图片尺寸3037x2304![[贵州]会堂室内设计精装修设计图cad图纸](https://i.ecywang.com/upload/1/img1.baidu.com/it/u=1853141328,2424473649&fm=253&fmt=auto&app=138&f=JPEG?w=625&h=500)
[贵州]会堂室内设计精装修设计图cad图纸
图片尺寸760x608
《和一堂》私藏会所
图片尺寸8039x5146