伟星国樾户型图

伟星国樾│3月19日盛大首开久等了主城真洋房
图片尺寸4169x3302
真香伟星国樾127㎡洋房演绎经典四叶草户型
图片尺寸2000x1455
伟星国樾│3月19日盛大首开久等了主城真洋房
图片尺寸4160x3091
伟星国樾
图片尺寸1500x1173
【伟星国樾_上饶伟星国樾楼盘】房价,户型,开盘时间详情-上饶贝壳新房
图片尺寸690x539
匠心筑造环景云邸好户型敬候懂得生活美学的你
图片尺寸1080x1501
上海伟星·国樾楼盘信息:伟星·国樾楼盘开盘交房信息_销控信息_新闻
图片尺寸1016x762
平方米收藏△出则繁华,入则宁静△背山面水,公园环绕伟星·公园天下
图片尺寸1080x1325
伟星国宾台
图片尺寸1080x778
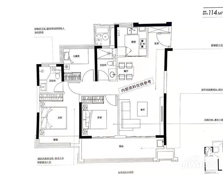
肥东伟星城楼盘户型图
图片尺寸756x576
肥东伟星城楼盘户型图
图片尺寸756x591
南北通透伟星国宾台4室2厅精装修
图片尺寸531x603
肥东伟星城楼盘户型图
图片尺寸756x584
芜湖伟星国宾台户型图,4室2厅2卫,约142平米,参考首付金额 - 芜湖房
图片尺寸6667x3750
伟星光谷星悦广场首页网站丨光谷星悦广场24小时电话解析楼盘详情户型
图片尺寸740x1110
伟星·户型图鉴赏.将鄞州的底蕴和骄傲 重置于眼前/ 每一席皆 - 抖音
图片尺寸1440x1920
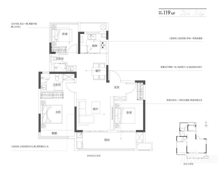
伟星珑胤台建面约102㎡户型图伟星珑胤台建面约89㎡户型图再比如建面
图片尺寸660x787
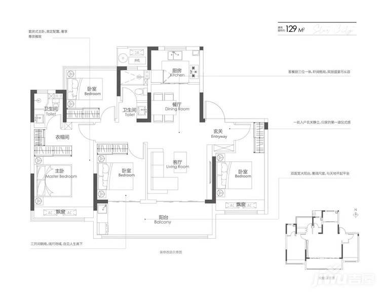
星润名著/建面约149㎡户型图宁波鄞州 伟星61星润名著—建面约109
图片尺寸1080x937
伟星城市之光f户型-4室2厅2卫,建筑面积约125.0㎡
图片尺寸1079x1466
伟星望奥-杭州(伟星望奥)楼盘详情丨伟星望奥户型图-小区环境
图片尺寸740x500