储藏室cad图

u型储藏间平面图
图片尺寸640x448
原本鸡肋的玄关,活生生变出2面顶天立地鞋柜 1个储藏间,太变态了!
图片尺寸913x553
图片来源/吉亩设计▲ 图片来源/吉亩设计09 玄关增设卫生间与储藏室▼
图片尺寸640x575
132平婚礼的祝福浪漫城堡风的珠宝店
图片尺寸1080x764
设计成厨房中岛还将书房的墙面拆除并把原有走道空间变成了储藏室加大
图片尺寸764x570
一层平面图一层只留一个卧室方便老人住,老人不好上下楼,储藏间是针对
图片尺寸3456x4608
140㎡潮流卡座榻榻米隐形储藏室收纳无敌
图片尺寸660x413
房屋设计图,cad室内设计图,cad绘图人员必备,全部(免费下载)
图片尺寸640x494
同步筑起一道隔墙,围出一间储藏室,提高居家收纳空间.
图片尺寸1080x722
室内专属图例图标cad图库,你必须拥有!
图片尺寸676x664
165㎡轻工业风,这才是男人的浪漫,迷倒众人!_设计_更衣室_猫咪
图片尺寸1080x768
一层还做了一个简餐厨房和一个大的储藏间,家里有储藏的需求.
图片尺寸1080x726
本项目北面正房的左边客厅改成卧室和书房
图片尺寸660x467
由东侧入户,北边两侧设置两个长辈卧室;西南侧的厨房内部增设了储藏室
图片尺寸1500x1253
过道与次卧增加双面柜增加储藏空间4.
图片尺寸1080x763
北京通州一层中式小院|平面图|正房|庭院|阁楼|储藏室_网易订阅
图片尺寸660x934
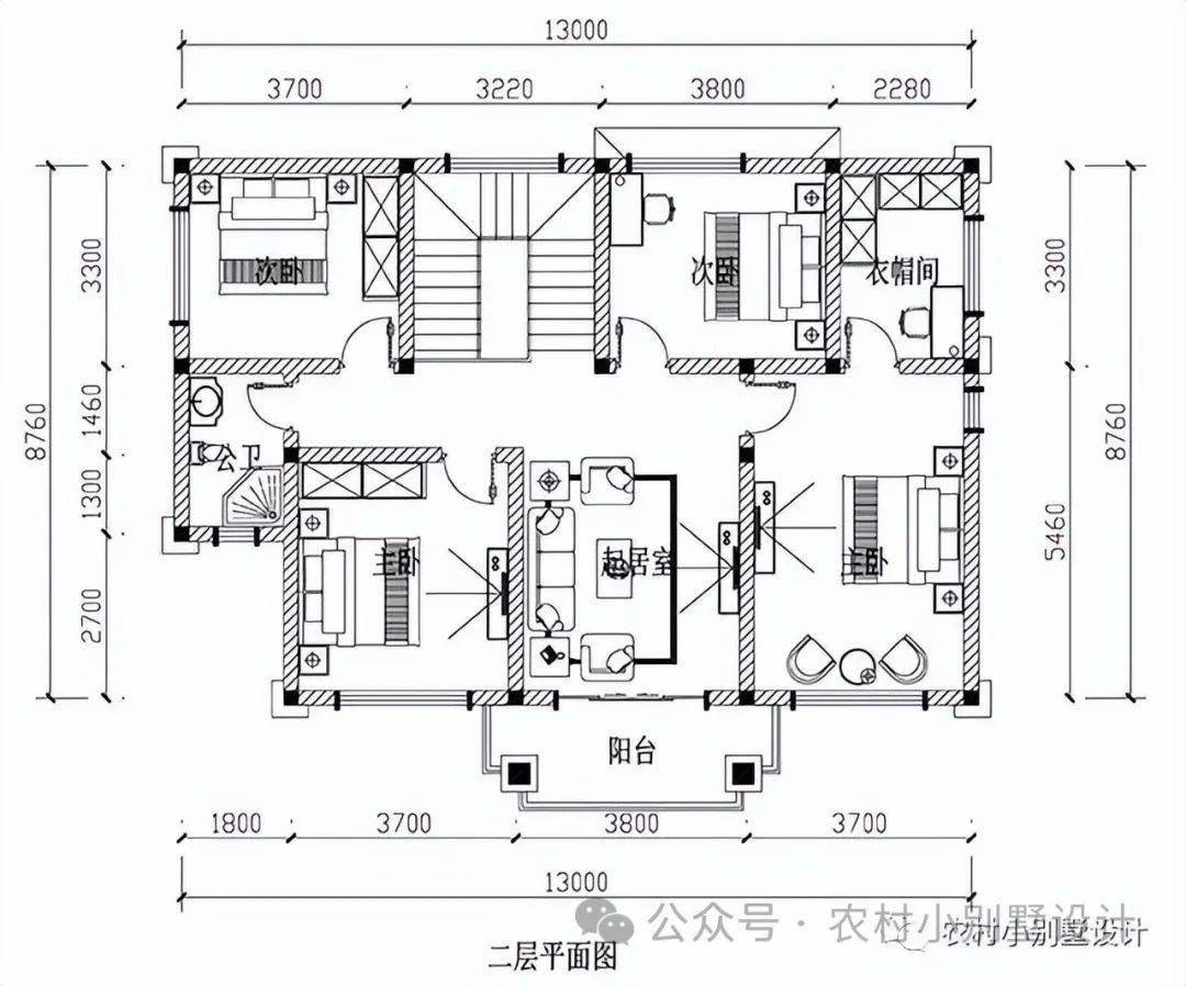
二层新中式别墅新款,二层新中式别墅养老房的不二之选_农村_卧室_建筑
图片尺寸1080x898
主卧套房还带有独立卫浴和小阳台,客厅当中另设公共卫生间,储藏室
图片尺寸640x550
初步设计图纸曝光汕头蔡楚生电影博物馆将装修布展总投
图片尺寸1073x813
2个月让你学会建筑电气设计明晚8点准时开班
图片尺寸1500x1125