兆域图

为什么铜版兆域图被称为顶级国宝?
图片尺寸1044x505
唐献陵兆域图
图片尺寸981x473
错金银铜版兆域图:上南下北,战国时期的唯一完整地图,别无分号
图片尺寸507x624
5,中山王错金银铜版兆域图
图片尺寸2636x1493
《兆域图》:世界最早青铜地图,领先罗马帝国600年
图片尺寸640x298
兆域图铭文释文
图片尺寸1280x708
错金银铜板兆域图
图片尺寸1920x1080
如果国宝会说话 第一季 - 024 - 错金银铜版兆域图
图片尺寸750x467
又将上央视如果这张最早的设计图会说话
图片尺寸740x499
从兆域图看中山国陵园规划
图片尺寸900x540
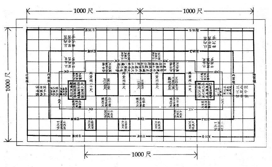
中山王"兆域图"隐含了"百尺为形,千尺为势"的"平格"模数方法.
图片尺寸865x531
云讲国宝|我们来啦!(七)
图片尺寸1080x638
第一季第24集错金银铜版兆域图
图片尺寸1080x540
中山王墓兆域图
图片尺寸562x310
中山王墓兆域图平格复原图(底图河北博物院藏,平格网王其亨老师绘)"不
图片尺寸660x347
考古发现最早的建筑总平面图:战国中山王墓中出土的铜板错银兆域图
图片尺寸849x508
傅熹年的古典文化世界
图片尺寸1280x607
经整理的《兆域图》
图片尺寸250x124
1974年河北一农民上交刻字巨石意外揭开战国第八雄的身份
图片尺寸640x481
一个未完成的"规划项目",根据王厝主墓室出土的错金银铜版兆域图来看
图片尺寸640x393