光伏车棚设计图纸

光伏停车棚模型及cad图纸下载
图片尺寸614x857
光伏| 光伏停车棚模型及cad图纸_公众_集训营_图纸
图片尺寸1080x693
浅析某厂区光伏停车棚的设计
图片尺寸1044x1038
一种光伏车棚的制作方法
图片尺寸444x284
光伏某大巴车棚光伏项目cad图纸
图片尺寸660x452
单车位光伏车棚结构单车位光伏车棚设计结构一般分为俩种分别为图1中
图片尺寸681x380
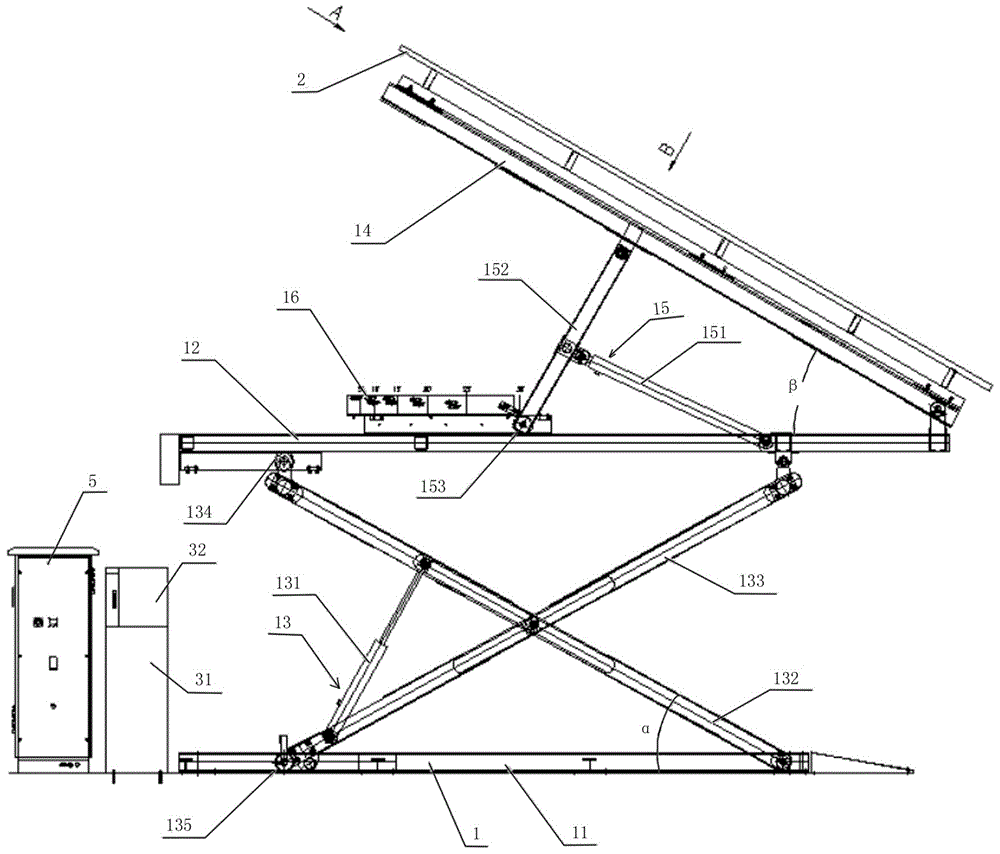
一种光伏防水车棚的制作方法
图片尺寸1000x453
光伏车棚太阳能停车棚发电家庭并网补贴停车位太阳能并网乐叶天合
图片尺寸620x316
光伏| 钢结构光伏车棚结构cad图纸_公众_集训营
图片尺寸1080x748
大连钢结构设计膜结构车棚
图片尺寸1204x780
一种可移动的太阳能光伏车棚
图片尺寸1000x854
光伏光伏车棚详细结构cad图纸
图片尺寸660x471
cn208380184u_一种应用于汽车物流园的建筑一体化光伏车棚有效
图片尺寸1000x506
电瓶车充电车棚结构设计图 - 交通建筑图纸 - 沐风网
图片尺寸698x481
单车位光伏车棚结构单车位光伏车棚设计结构一般分为俩种分别为图1中
图片尺寸713x404
全套光伏车棚模型 cad设计图纸打包!_发电_屋顶_新能源
图片尺寸1080x779
光伏| 钢结构光伏车棚结构cad图纸_公众_集训营
图片尺寸824x578
太阳能光伏汽车机动车棚非机动车棚图纸
图片尺寸568x397
50 kb,dwg格式) 机械cad图纸
图片尺寸563x334
某简易车棚结构设计图
图片尺寸839x591