农村户型模型

农村瓦房求改结构
图片尺寸800x800
传统民居案例分享,方方正正,内设大土炕
图片尺寸640x1040
农村自建房#农村一层别墅自建房模型,附户型图建好就这样
图片尺寸1080x1920
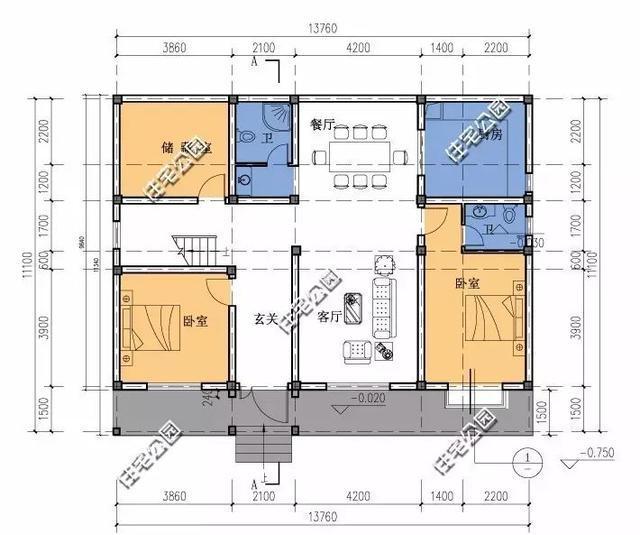
农村户型图
图片尺寸2400x1800
10套农村别墅方正户型第9套经济又是很多农村人的喜爱
图片尺寸640x735
农村户型六套,很经典的户型,适合北方地区
图片尺寸708x464
实用农村自建房户型
图片尺寸1080x1440
新农村独栋别墅 - 草图大师模型下载-sketchup模型库-su模型-草图大师
图片尺寸1800x1245
15米宽10米深两侧不能开窗的一层农村自建房如何设计
图片尺寸640x618
农村一层别墅150平米左右,有好的房型推荐吗?
图片尺寸640x552
有没有农村别墅自建方案
图片尺寸640x734
精选10套热门农村户型, 第1宅基地80平就能建好? 8,9谁最好看?
图片尺寸640x535
农村二层设计图
图片尺寸800x800
自建建房设计图图纸二层别墅设计农村小户户型建筑及模型设计
图片尺寸750x735
头条问答 - 8米乘15米长宽的二层怎么样设计3房一厅一厨一卫呢?
图片尺寸640x930
农村自建房|10.2x8.
图片尺寸1336x1280
清墅农村自建房中式独栋宽敞露台3d
图片尺寸600x254
农村自建房10x10米户型,平面转三维模型,家人看户型更方便了
图片尺寸635x1028
新农村规划中的一种户型su模型
图片尺寸950x558
农村自建房什么户型最好5套20万的小平房选一个回家盖吧
图片尺寸640x813