农村楼房屋设计图

5款30万的农村房屋设计图3款带庭院2款带火炕北方人一定要看
图片尺寸1080x1071
五款农村二层房子设计图,你最喜欢哪款发您看看?#农村自建别墅 - 抖音
图片尺寸1332x1920
农村100平米楼房设计图,实用精致,在老家有一个这样的房子多好
图片尺寸640x620
方案三:农村二层别墅设计图,占地97平米,带旋转楼梯设计
图片尺寸1100x994
农村三层欧式自建房设计图大全
图片尺寸750x940
8套农村两层自建房别墅设计图,主体毛坯房25万左右
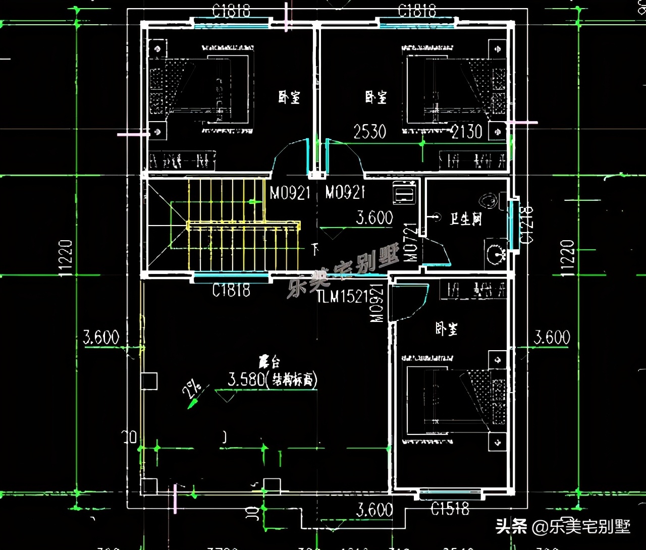
图片尺寸1280x1090
农村普通三层自建楼房平面图,其中第一款带车库,第三款最实用
图片尺寸640x670
st2109美式乡村小别墅设计图纸全套效果图新农村自建房二层楼房
图片尺寸800x800
农村二层楼简单大气图纸让城里人羡慕吧
图片尺寸750x862
简欧风二层农村别墅设计图一层
图片尺寸750x657
南方农村两层半房屋设计图绝对惊艳,收藏图纸不迷路
图片尺寸1242x1406
4*11.4米,农村一层自建房屋设计图纸 - 乡村住宅在线
图片尺寸800x600
面宽20米大气的农村二层别墅设计图户型带车库和土灶房设计
图片尺寸750x545
农村别墅四开间二层自建别墅图带堂屋土灶房设计方正舒适生活超便利
图片尺寸1080x1920
自建房设计#农村三间两层楼房设计图,外观精致漂亮,户型实用,这彩是
图片尺寸450x800
30套农村二层楼房设计图,2023年自建二层别墅建房首选户型
图片尺寸1280x886
16米x10米农村经典三层别墅设计图,快来欣赏这套带你穿越的户型吧.
图片尺寸399x367
120平方农村平顶三层楼房设计图,户型规矩合理,外观好看大气
图片尺寸640x521
新农村二层欧式别墅设计图纸乡村自建房两层现代楼房全套施工
图片尺寸1242x1242
欧式二层网红别墅设计图纸新农村自建房屋小户型楼房施工效果图
图片尺寸750x750