凤铝型材图册

凤铝1.jpg
图片尺寸550x600
50系列工业铝型材展示
图片尺寸1241x1684
南昌十大品牌门窗封阳台 凤铝铝材108三轨推拉窗带金刚网定制
图片尺寸521x800
0材料6腔体价格588一平方 凤铝120型号2.
图片尺寸906x1280
维卡森门窗与您一起分享凤铝型材品牌还是窗户的品牌
图片尺寸1080x1084
上海侑田凤铝799型铝合金门窗隔音隔热窗双层中空玻璃封阳台窗户
图片尺寸790x488
凤铝高端门窗-最终印刷版0109-27_03.jpg
图片尺寸1100x1400
铝合金平开窗断桥铝门窗隔音隔热双层中空玻璃断桥铝门窗门窗定制
图片尺寸711x1000
断桥铝型材凤铝
图片尺寸1658x1557
产品中心
图片尺寸1000x1415
广东凤铝铝业有限公司官网-工业铝材|门窗幕墙|幕墙 |铝型材排名|铝
图片尺寸1100x1400
55系列平开门,窗型材目录
图片尺寸800x1130
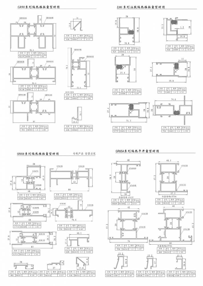
757系列推拉窗型材图集01
图片尺寸2480x3508
50a系列中空,单玻平开窗_门窗型材-湖北幸福铝材有限公司
图片尺寸2480x3096
凤铝高端门窗-最终印刷版0109-31_03.jpg
图片尺寸1100x1400
55系列平开门,窗型材目录
图片尺寸800x1131
55系列平开门,窗型材目录
图片尺寸800x1131
工业铝型材选型手册
图片尺寸1241x1684
广澳铝材是国家建筑材料工业局科学技术开发中心建筑门窗型材开发
图片尺寸554x800
断桥铝门窗价格"猫腻" 99%的人看完都说学到了_北京凤铝门窗
图片尺寸790x969