出租房设计图平面图

她重新装修出租房,花了5个月改造,完工后,众人直夸:太美了!
图片尺寸624x647
求助出租房改造,每个单间增加一厨一卫,谢谢.
图片尺寸800x800
出租房也有温度
图片尺寸640x665
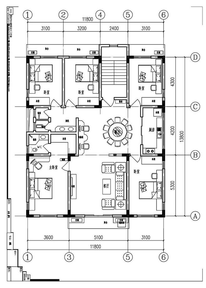
农村自建出租房户型设计 开间7.
图片尺寸961x1280
出租房户型图3dmax非专业人士第一次做
图片尺寸569x526
出租房方案设计分享
图片尺寸640x905
密云出租房
图片尺寸1080x754
这间位于莫斯科的33平米公寓是计划用来出租的,客户希望设计师在
图片尺寸650x750
225㎡狗窝改造纪实代友搬运出租屋改造实录
图片尺寸1080x1109
3000元改造16㎡单间出租屋北漂都看哭了
图片尺寸918x1348
自建房出租房户型设计(改图)
图片尺寸2416x2392
高难度挑战,小户型,改三个出租房!
图片尺寸800x800
出租房设计请有空的设计师帮忙出出方案
图片尺寸800x800
求大师们帮忙 重新分布一下出租屋布局
图片尺寸800x800
农村自建房多层出租屋12x14米168平米
图片尺寸658x922
出租屋改造,求设计师帮帮忙.
图片尺寸1130x753
富抱泉花园出租房户型图
图片尺寸800x600
聚金万佳苑出租房户型图
图片尺寸1800x1501
设计中后期的出租房先看平面哦
图片尺寸1080x763
户型设计,自建出租房,3套不计楼梯合共60 平,分成3套,酬!
图片尺寸800x800