别墅剖面图高清

剖面图
图片尺寸3660x2272
260-320 plans_sp section1剖面1.jpg
图片尺寸6967x4624
剖面图
图片尺寸1294x866
别墅剖面图.jpg
图片尺寸760x608
两层别墅住宅建筑剖面图
图片尺寸560x420
高分求建筑剖面图 80 本人做一个产品说明,需别墅剖面图来示范说明.
图片尺寸560x545
剖面图
图片尺寸640x429
现代别墅剖面图集
图片尺寸690x446
剖面图
图片尺寸936x795
b-b剖面图
图片尺寸1640x1171
三层美式独立别墅剖面图
图片尺寸560x420
剖面图
图片尺寸1190x633
300平高级欧式别墅设计施工剖面图
图片尺寸560x420
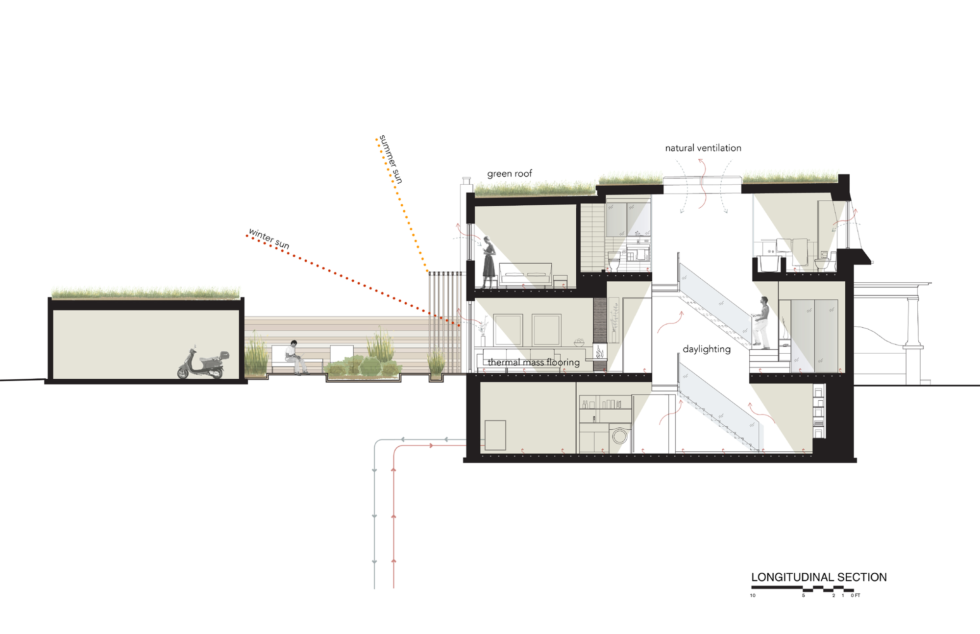
加拿大直达别墅剖面图-加拿大直达别墅第15张图片
图片尺寸2000x1294
两层独栋别墅剖面图
图片尺寸560x420
2层简欧式独栋别墅建筑剖面图
图片尺寸560x420
新中式独院式别墅建筑施工图-剖面图
图片尺寸760x543
两层现代独立式别墅剖面图
图片尺寸560x420
剖面图
图片尺寸760x543
巴西madalena别墅剖面图
图片尺寸2000x792