前台大样图cad
![[分享]前台详图节点资料下载](https://i.ecywang.com/upload/1/img0.baidu.com/it/u=2610124077,1984514489&fm=253&fmt=auto&app=138&f=JPEG?w=560&h=420)
[分享]前台详图节点资料下载
图片尺寸560x420
分享大理石服务台cad资料下载
图片尺寸560x420
宾馆前台大样图(图纸齐全,推荐参考)
图片尺寸602x440
分享服务台节点大样图资料下载
图片尺寸760x378
深度:施工图 项目位置:上海 设计风格:现代风格 图纸格式:jpg,cad2000
图片尺寸1648x1165
分享cad餐台大样资料下载
图片尺寸760x537
分享cad大厅立面图资料下载
图片尺寸760x570![[上海]b&co设计-利丰广场办公室cad施工图 效果图 材料样板 工程报价](https://i.ecywang.com/upload/1/img2.baidu.com/it/u=2644336651,3609561186&fm=253&fmt=auto&app=138&f=JPEG?w=500&h=400)
[上海]b&co设计-利丰广场办公室cad施工图 效果图 材料样板 工程报价
图片尺寸760x608
深度:施工图 项目位置:江苏 设计风格:中式风格 图纸格式:jpg,cad2000
图片尺寸760x537
办公室立面图463 办公室展示柜大样63 前台立面63 前台大样
图片尺寸1080x830
分享配套公建cad资料下载
图片尺寸670x579
分享中式电视柜cad立面图资料下载
图片尺寸560x351![[天津]某高端大酒店设计cad施工图](https://i.ecywang.com/upload/1/img0.baidu.com/it/u=1383252432,3531908412&fm=253&fmt=auto&app=138&f=JPG?w=500&h=375)
[天津]某高端大酒店设计cad施工图
图片尺寸760x570
深圳9400㎡眼科医院cad施工图纸平面立面大样图
图片尺寸640x454
老乡鸡快餐厅cad图纸
图片尺寸1052x1496
图项目位置:浙江设计风格:现代风格图纸格式:jpg, cad2000图纸张数:39
图片尺寸560x420
素材cad室内大样这施工图纸原来还剩这么多细节
图片尺寸1280x952
成套装饰墙面造型节点详图cad图块下载
图片尺寸560x420
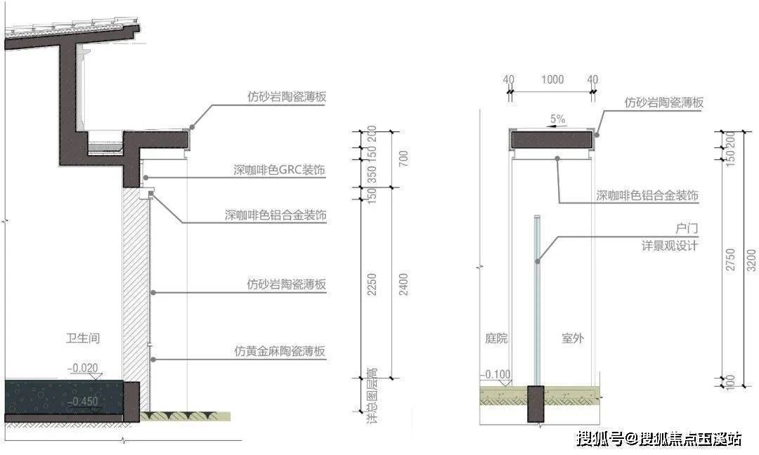
入口墙身大样门窗成为建筑最重要的一部分.建筑体量小,尺度宜人.
图片尺寸1080x648
41套室内cad节点大样整合资料
图片尺寸760x537