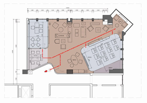
办公室动线图

武汉吉家房地产有限公司办公室
图片尺寸1181x551
从进门区域到底前台,在经过动线到达开放办公区域,之后达到产品展示区
图片尺寸700x749
赫韬项目双重空间新生代内容资讯app趣头条办公兼展厅设计装修
图片尺寸1200x745
小型办公室如何规划功能区及动线
图片尺寸3208x2230
金恪建筑后疫情时代办公室动线设计才是重中之重
图片尺寸725x300
office circulation 办公室动线
图片尺寸1000x498
杭州中交财富中心花园办公室样板房说明
图片尺寸900x467
金恪建筑后疫情时代办公室动线设计才是重中之重
图片尺寸908x470
律师公司律师事务所办公室装修设计效果图方案
图片尺寸640x550
【空间设计】当东方遇见西方——美中嘉华办公室设计
图片尺寸490x342
痴迷于居家生活设计的办公室
图片尺寸1080x799
成都通威办公楼_05 一层人流动线图.jpg
图片尺寸1000x707
own设计——南京麒麟人工智能产业园_办公空间_室内设计联盟
图片尺寸2668x2837
石家庄科技园(办公楼室内精装)
图片尺寸3508x2481
办公室设计,让生活滚烫起来
图片尺寸776x794
办公室设计,办公空间设计,长沙办公室设计,办公室设计案例,人才服务
图片尺寸3840x2160
人流动线图moving line diagram 未来,新型办公室还有很大的发展
图片尺寸1499x1033
收藏 【客户动线】 收藏 工法区 收藏 工法区 收藏 【工法馆】 收藏
图片尺寸1280x770
谦禾空间设计|冬日的桑格利亚_办公空间_室内设计联盟 - powered by
图片尺寸1280x1036
空间动线规划是办公空间设计的核心,平衡功能需求与原有建筑本体的
图片尺寸1080x836