北宋皇宫平面图全图

「北宋皇宫」宋仁宗的家究竟有多大
图片尺寸640x846
北宋皇宫内城
图片尺寸962x1280
「北宋皇宫」宋仁宗的家究竟有多大
图片尺寸640x852
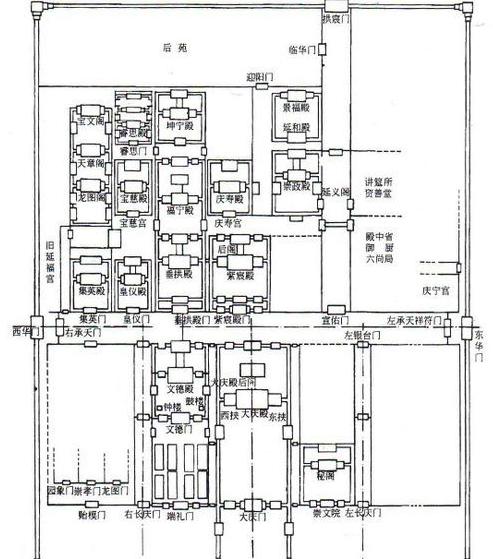
为何宋朝的皇宫这么寒酸?
图片尺寸640x482
北宋汴梁(今河南省开封市)和南宋临安(今浙江省杭州市)宫殿都是就旧时
图片尺寸698x1000
unhotmail的博客
图片尺寸335x479
宋仁宗遇刺案,皇后处理有功却未得嘉赏,案中案让人细思极恐|皇宫|郭逵
图片尺寸493x559
子鱼的相册玩转帝都
图片尺寸540x685
北宋都城东京平面图:北宋都城东京(今河南开封),古时又称汴梁,汴京
图片尺寸1601x1524
北京之旅(四)
图片尺寸680x571
北京皇宫简图
图片尺寸800x1100
为何宋朝的皇宫这么寒酸?
图片尺寸640x879
北宋皇宫平面与清紫禁城平面对比
图片尺寸640x339
北京五人行留念
图片尺寸928x1161
沈阳故宫平面图"皇位继承大会"在崇政殿(位于今天沈阳故宫)举办,诸
图片尺寸1098x1280
展开全部 大中祥符元年——北宋发布中国古代第一部由官方主修的韵书
图片尺寸762x950
这家美术馆的发家路竟是始于一场神经衰弱
图片尺寸600x950
帝都之旅——开启人生新的旅途
图片尺寸800x1066
"前朝后寝"是指皇宫前面是皇帝的办公区,后面是皇帝与妃子居住的地方
图片尺寸1026x1279
唐有大明宫,明清有紫禁城,富庶宋朝为何没有一座像样
图片尺寸614x626