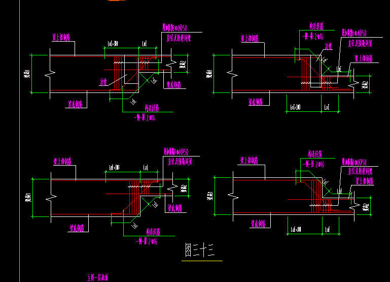
十字梁大样

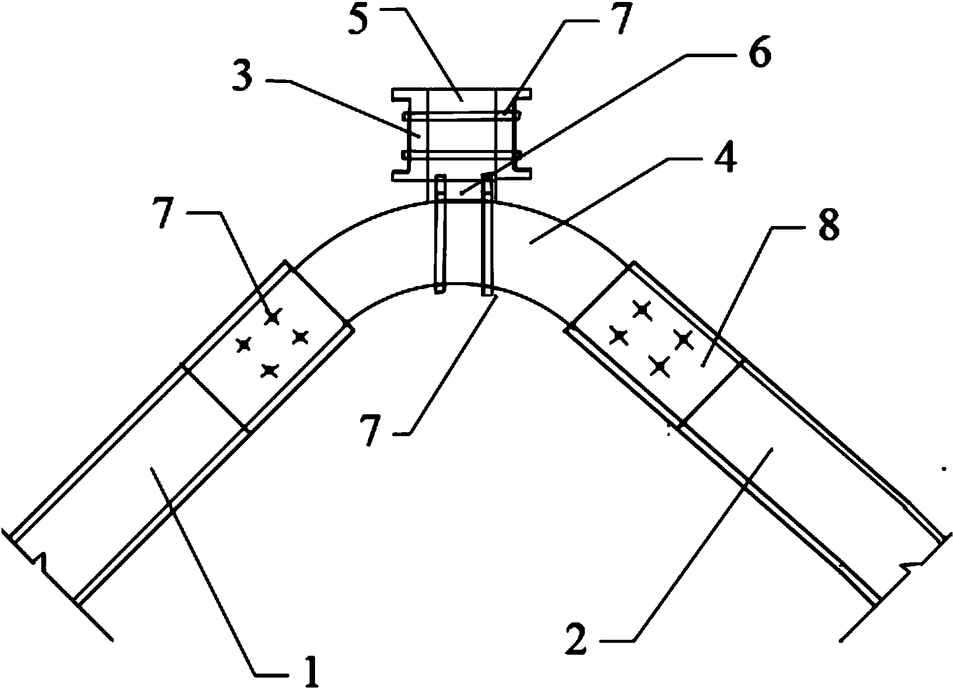
一种装配式十字梁架节点
图片尺寸1918x1385
一种工字钢梁十字型连接结构的制作方法
图片尺寸1000x804
十字假梁节点大样
图片尺寸506x525
梁表大样大样图
图片尺寸1311x927![[分享]梁做法大样资料下载](https://i.ecywang.com/upload/1/img1.baidu.com/it/u=3641372093,1857337443&fm=253&fmt=auto&app=138&f=JPEG?w=500&h=352)
[分享]梁做法大样资料下载
图片尺寸760x535
梁配筋图识读doc
图片尺寸920x1302
梁大样图
图片尺寸835x592
十字梁与井字梁(三种工况)
图片尺寸547x502
新手求:这是一个基础梁的截面图,请问中间的四根钢筋是什么筋啊?
图片尺寸693x565
什么是刀把梁?
图片尺寸769x555
矩形柱工地拼接大样,h型柱工地拼接大样,十字型柱工地拼接大样,钢箱梁
图片尺寸760x646
根据次梁的布置情况可分为单次梁结构,双次梁结构,十字梁结构,艹字梁
图片尺寸1080x1080
请问下图所示的十字梁相交处箍筋怎么定义?
图片尺寸1034x531
某预应力梁板大样节点构造详图
图片尺寸756x535
梁配筋平面表示法与梁构造通用图说明
图片尺寸560x363
梁增大截面加固施工方案
图片尺寸507x503
这种梁加宽的大样要怎么画呢,求助各路大神啊
图片尺寸501x556
7米跨度需要多大的梁
图片尺寸700x400
支撑梁大样图
图片尺寸560x437
图08 五层顶板支撑系统立面图 图09 节点大样图 图10 观测点平面
图片尺寸365x520