升旗台尺寸

某中学开敞式三杆升旗台施工图
图片尺寸891x634
旗台尺寸
图片尺寸530x400
某学校升旗台全套详细cad施工图
图片尺寸610x432
详细升旗台施工设计cad平立剖面布置详图
图片尺寸610x743
单杆国旗台施工图
图片尺寸560x401
三杆升旗台
图片尺寸1600x2581
三杆式升旗台大样cad图
图片尺寸818x488
汉白玉国旗台大理石升旗台 福建厂家生产汉白玉石栏板石雕国旗台
图片尺寸1024x588
升旗台施工做法图片
图片尺寸1600x1310
某升旗台施工详图
图片尺寸560x419
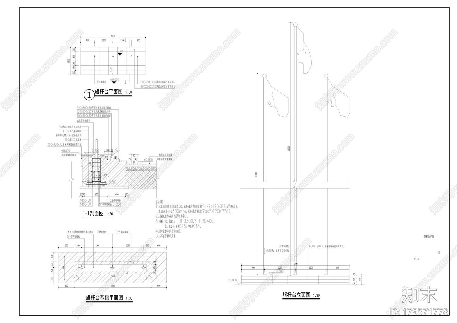
小学中学升旗台大样图施工图下载【id:179571778】
图片尺寸1600x1131
某升旗台施工大样图及节点cad
图片尺寸610x861
某升旗台施工大样图及节点cad
图片尺寸610x861
升旗台详图
图片尺寸560x317
某城市升旗台结构布置cad参考施工大样图
图片尺寸610x525
某中学开敞式三杆升旗台施工图cad设计图
图片尺寸610x432
一种教学升旗台
图片尺寸1499x2333
某学校升旗台cad施工图
图片尺寸610x442
某中学校园升旗台cad设计详图
图片尺寸610x432
升旗台详情_11.jpg
图片尺寸750x597