升降机图纸

一种e型液压升降平台-爱企查
图片尺寸800x626
辽宁沈阳剪刀叉式固定升降平台电动遥控升降舞台安装简易电动升降机
图片尺寸750x664
一种载车板agv立体车库的升降机
图片尺寸1855x1955
一种液压双梁门架式升降平台
图片尺寸1382x2484
全液压升降机设计含开题及8张cad图.全液压升降机设计含开题 - 抖音
图片尺寸900x900
升降机
图片尺寸1339x2450
升降机设计
图片尺寸605x345
一种液压升降机
图片尺寸1619x1389
sc200/200施工升降机 使用说明书
图片尺寸640x632
cn201598138u_液压式无障碍升降平台有效
图片尺寸2022x2528
厂家定制hanmoke汉莫克导轨式升降货梯 2吨升降货梯 电动液压控制
图片尺寸1103x1309
swl50t蜗轮蜗杆升降机图纸
图片尺寸1586x1043
供应4-18米移动剪叉式升降机天津市四轮电动高空作业车小型运货升降
图片尺寸765x482
一种带有省力装置的液压式移动升降平台
图片尺寸2124x1744
sc型施工升降机安装指导手册
图片尺寸2339x3319
一种施工升降机
图片尺寸1687x2215
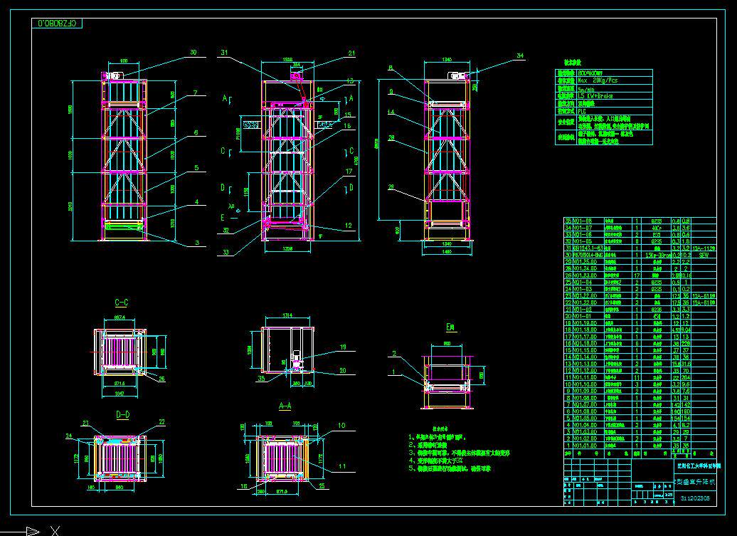
j451-z型垂直升降机设计cad图纸
图片尺寸1036x753
液压升降平台cad图下载(126.24 kb,rar格式) 机械cad图纸
图片尺寸2339x1654
液压升降机结构图
图片尺寸765x482
cn208218139u_一种建筑用施工升降机有效
图片尺寸1874x2059