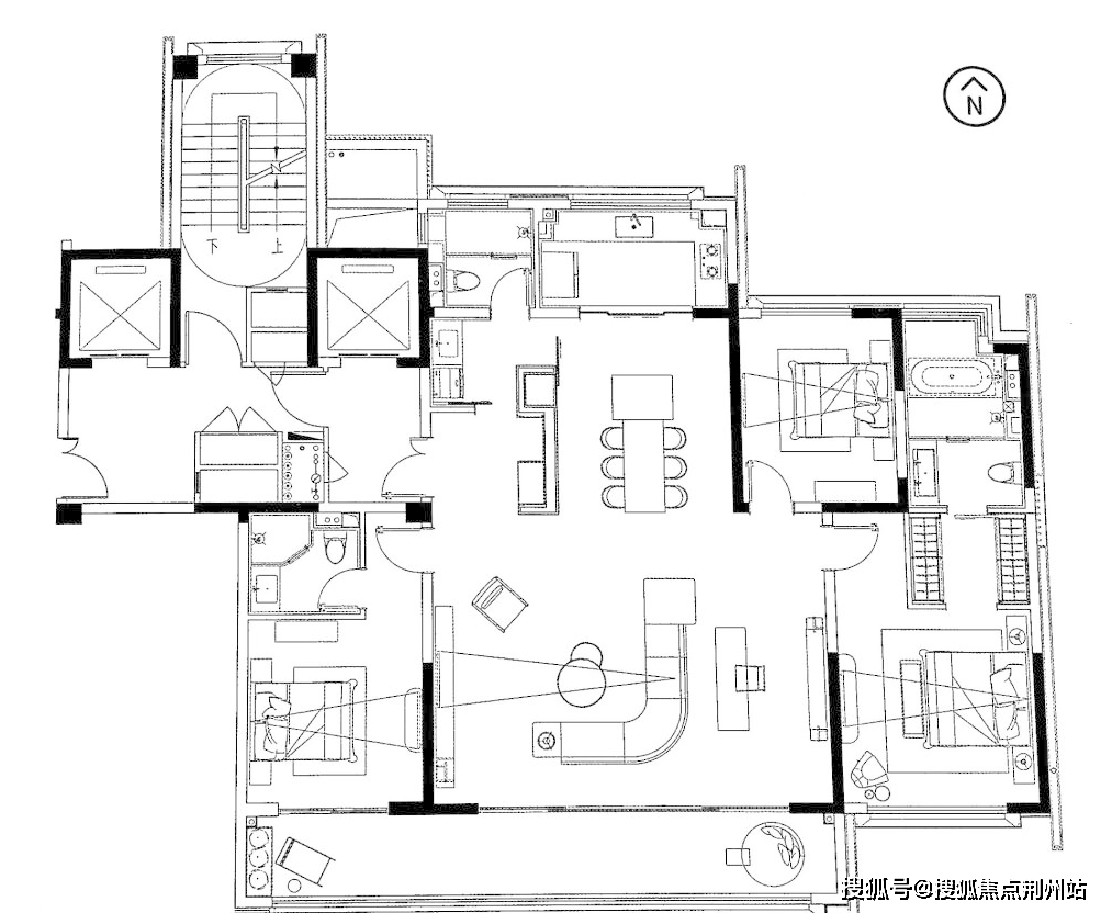
南通滨江玺户型300

招商滨江玺价格,周边交通配套测评,招商滨江玺优劣势分析-南通房天下
图片尺寸1066x800
南通滨江玺·滨江道户型图,南通滨江玺·滨江道房型图,滨江玺·滨江道
图片尺寸1080x940
南通·招商·滨江玺 户型方案研讨中.
图片尺寸1080x596
3南通招商滨江玺欢迎您_楼盘详情/地址/户型/价格_规划_项目_板块
图片尺寸1013x832
滨江玺·滨江道,滨江玺·滨江道4室2厅142㎡户型图,朝向-南通凤凰网
图片尺寸1214x893
南通招商滨江双玺售楼处电话〢楼盘详情〢区域配套〢户型解析〢24小时
图片尺寸1080x566
滨江玺樾首页网站|滨江玺樾-楼盘动态_户型_项目详解_学区_销售电话
图片尺寸740x1982
滨江玺樾首页网站|滨江玺樾-楼盘动态_户型_项目详解_学区_销售电话
图片尺寸740x1001
b3户型
图片尺寸800x695
滨江玺南通很难再做第二个
图片尺寸1050x628
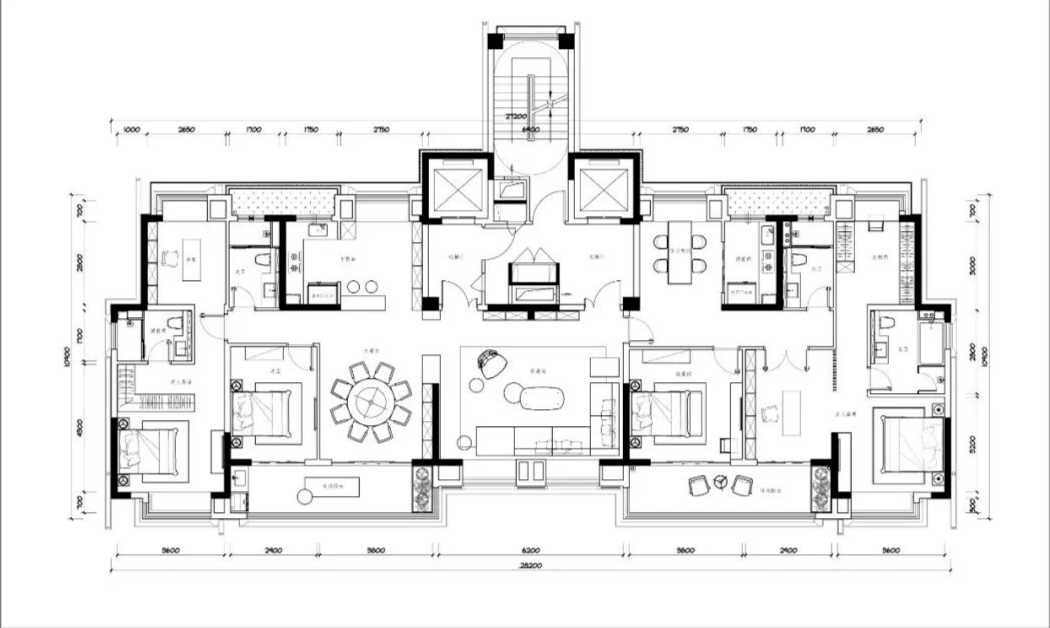
户型信息 华宇锦绣澜湾 对比字段 华宇锦绣澜湾 滨江玺·滨江道 户型
图片尺寸2056x2222
滨江玺樾首页网站|滨江玺樾-楼盘动态_户型_项目详解_学区_销售电话
图片尺寸740x1484
楼层好 俯瞰江景房 包大税 急售随时看房,南通崇川南通海关滨江玺
图片尺寸848x603
滨江玺樾5室230万元!高品味生活从点击此房开始!
图片尺寸803x603
【5月特惠】滨江玺樾-最新成交价-特价房源查询-项目分析-售楼处电话
图片尺寸2692x1280
【5月特惠】滨江玺樾-最新成交价-特价房源查询-项目分析-售楼处电话
图片尺寸1809x1280
231㎡户型标准层分析全套房315㎡作为南通市场的网红产品,设计合理
图片尺寸1080x352
最后48套建面约197㎡4房即将入市_均价_过程_户型图
图片尺寸1080x759
成都城西别墅滨江玺樾售楼中心楼盘详情一房一价看房请致电售楼处预约
图片尺寸740x1001
圆融玺悦售楼处电话→南通圆融玺悦售楼中心→楼盘百科→24小时热线
图片尺寸830x812