博物馆鸟瞰图手绘

【建筑速写13】故宫博物院鸟瞰(2p原速剪辑)
图片尺寸2590x1619
鸟瞰图表达本案例是展览博物类建筑.
图片尺寸662x468
尚谷一周抄绘 | 宁波帮博物馆抄绘评图
图片尺寸771x1518
总结鸟瞰图表达本案例是展览博物类建筑.
图片尺寸1080x1568
首尔buk艺术博物馆
图片尺寸600x443
博物馆设计鸟瞰图-牛君的设计师家园-博物馆设计
图片尺寸660x494
古钟博物馆及环境
图片尺寸1043x498
朝花夕拾生活博物馆鸟瞰图 下载全套大图
图片尺寸2000x1354
【一等奖】上海世博会博物馆‖2017-2018年度建筑设计奖·建筑幕墙
图片尺寸929x515
快题设计 #城乡规划快题 #规划鸟瞰图 #手绘鸟瞰图
图片尺寸1080x763
竖直画幅的南京博物院鸟瞰图图片
图片尺寸534x800
固有色特质表达,画面氛围调整总结鸟瞰图表达本案例是博物展览,文化
图片尺寸664x798
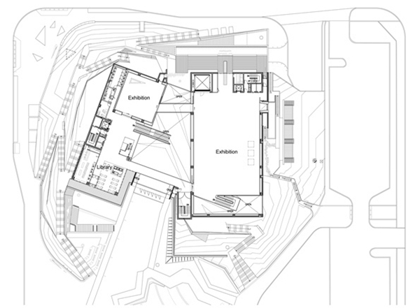
首尔buk艺术博物馆
图片尺寸600x441
广州粤剧艺术博物馆建筑设计 | 华南理工建筑设计
图片尺寸1555x1000
这个博物馆的设计会给空间意向一点启发
图片尺寸600x778
不会画鸟瞰的小朋友看过来园林鸟瞰图手绘
图片尺寸1080x810
手绘鸟瞰图
图片尺寸1080x1439
总结鸟瞰图表达本案例是展览博物类建筑.
图片尺寸674x953
总结▲鸟瞰图表达本案例是博物展示类建筑.
图片尺寸1080x1533
内蒙古自治区自然历史博物馆ccdai案例
图片尺寸1080x773