卧室节点图

装配式建筑电气设计探讨
图片尺寸482x339
某卧室cad节点构造施工设计图纸
图片尺寸610x861
典型住宅楼卧室装修设计cad施工节点详图图集
图片尺寸610x861![[图块/节点]卧室立面详图](https://i.ecywang.com/upload/1/img1.baidu.com/it/u=721649716,4113179368&fm=253&fmt=auto&app=138&f=JPEG?w=667&h=500)
[图块/节点]卧室立面详图
图片尺寸800x600
人体工程学‖卧室功能&尺寸‖#三寿设计师 #三寿设计 #三寿 - 抖
图片尺寸1279x1706
卧室全套设计施工图
图片尺寸610x678
部分常用卧室 室内装饰cad大样图_室内节点详图_土木在线
图片尺寸430x578![[图块/节点]主卧立面装饰图](https://i.ecywang.com/upload/1/img2.baidu.com/it/u=4099166134,1796406709&fm=253&fmt=auto&app=138&f=JPEG?w=667&h=500)
[图块/节点]主卧立面装饰图
图片尺寸800x600
43个主人房及卧室立面装修方案图集-室内节点详图-筑龙室内设计论坛
图片尺寸800x600
三款欧式卧室立面图-室内节点详图-筑龙室内设计论坛
图片尺寸800x600
样板房卧室装修详图-室内节点详图-筑龙室内设计论坛
图片尺寸560x432
豪华主卧室节点详图
图片尺寸560x420
女儿房卧室立面图-室内节点详图-筑龙室内设计论坛
图片尺寸800x600
为什么别人家的卧室这么舒适温馨,原来全靠这些小心机!
图片尺寸666x234
小卧室装修详图-室内节点详图-筑龙室内设计论坛
图片尺寸560x420
卧室床背景详图Ⅲ-室内节点详图-筑龙室内设计论坛
图片尺寸420x560
主卧室立面图-室内节点详图-筑龙室内设计论坛
图片尺寸640x480
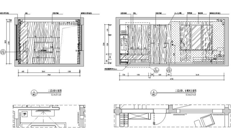
二层次卧室立面图
图片尺寸760x454![[图块/节点]卧室](https://i.ecywang.com/upload/1/img2.baidu.com/it/u=434084554,1797573137&fm=253&fmt=auto&app=138&f=JPEG?w=500&h=241)
[图块/节点]卧室
图片尺寸560x270
某私家别墅主卧室装饰设计cad施工详图_室内节点图块_土木在线
图片尺寸610x861