卫生间排水系统图图例

卫生间排水管道识图3步法
图片尺寸640x889
第二步:立管识图 从图1-3中可以看出,男女公用卫生间的排水系统共有2
图片尺寸640x683
卫生间下层排水和同层排水哪个好(卫生间的同层排水)(1)
图片尺寸640x398
p16十一型卫生间同层排水布置图.jpg
图片尺寸3509x2481
卫生间排水管排污管安装指导
图片尺寸1080x1440
卫生间排水系统图
图片尺寸1379x1034
现在流行的下沉式卫生间,比普通卫生间好在哪?_排水立管
图片尺寸473x294
p5二型卫生间同层排水布置图.jpg
图片尺寸3509x2481
主卫生间标准层排水系统图
图片尺寸640x521
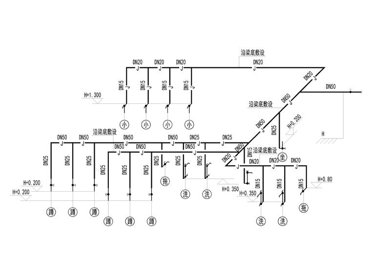
卫生间系统图.jpg
图片尺寸760x570
卫生间详图
图片尺寸1600x1280
越来越多卫生间不装上下层排水了,现在流行这样装,永远不漏水!
图片尺寸1000x775
12s306住宅卫生间同层排水系统安装图集pdf格式超清免费电子版
图片尺寸917x668
排水系统图例 >排水系统图例 市场价: 未知 优惠价: 面议 报价时间
图片尺寸604x744
图1-2:给排水系统图男女卫生间
图片尺寸640x606
给排水工程 建筑给水排水 卫生间给排水大样图是不是一定要画系统图
图片尺寸812x529
图纸包括:卫生间给排水大样图,卫生间卫生洁具定位图,给水系统图等
图片尺寸610x861
图1-2:a女卫生间排水平面图系统图
图片尺寸640x406
12s306:住宅卫生间同层排水系统安装
图片尺寸1688x1216
关于卫生间给水排水工程量的算法?
图片尺寸518x433