卸料平台立面图

百度爱采购首页 商品专题_卸料平台侧立面:注意连墙件应与外架保持
图片尺寸3508x4963
落地式卸料平台搭设立面
图片尺寸674x955
卸料平台立面图
图片尺寸750x562
悬挑式卸料平台立面图
图片尺寸666x939
卸料平台立面图
图片尺寸662x640
落地式卸料平台计算书
图片尺寸577x618
地下车库落地式钢管卸料平台正立面图
图片尺寸445x528
卸料平台侧立面图.png
图片尺寸758x639
落地式卸料平台施工图
图片尺寸676x560
求助卸料平台设计图纸
图片尺寸550x509
悬挑式卸料平台制作施工技术交底,有详细做法示意图!
图片尺寸598x444
安置房项目卸料平台施工方案
图片尺寸588x692
一种自动运行的双支撑体系卸料平台装置的制作方法
图片尺寸1000x806
侧立面:注意连墙件应与外架保持独立,不得混用;卸料平台的搭设不得
图片尺寸640x905
6层框剪结构办公楼落地式卸料平台施工方案-02 立面布置图
图片尺寸760x521
某槽钢悬挑卸料平台立面图
图片尺寸513x455
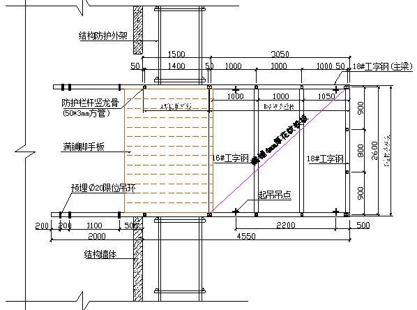
型钢悬挑式_卸料平台侧立面图
图片尺寸739x374
周转式卸料平台搭设正立面示意图
图片尺寸656x460
卸料平台示意图.docx 8页
图片尺寸860x1218
上海某高层主体落地式卸料平台施工方案(有计算)
图片尺寸579x484