压力管道镇墩

管道设计中镇墩与支墩的重要性与应用
图片尺寸1136x830
管道设计中镇墩与支墩的重要性与应用
图片尺寸1136x1500
城镇备用水源项目杨溪水库段管道镇墩工程计量
图片尺寸1920x1080
施工人员为一处镇墩涂刷防腐涂料
图片尺寸4094x2729
压力管道镇墩动态预警监测系统
图片尺寸600x514
各类管道镇墩设计图各种角度全面的令人发指
图片尺寸1440x1020
图片尺寸1440x2128
10月4日,在百色水库灌区土建二标施工现场,工人们正加紧给沉管镇墩1号
图片尺寸700x467
镇墩的功用主要是承受因管道方向改变而产生的不平衡力,使管道在镇墩
图片尺寸855x624
室外水管的支墩怎么计算,套什么定额
图片尺寸1280x1707
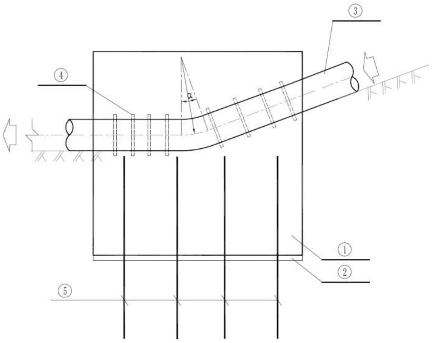
一种用于钢管垂直转弯的镇墩
图片尺寸1404x1116
大渡河大岗山水电站301
图片尺寸543x384
沙河水库涵管镇墩渗水情况
图片尺寸1999x2666
东七泵站完成浇筑镇墩砼及临时厂房砼地坪
图片尺寸1200x1600
各类管道镇墩设计图,各种角度,非常全面
图片尺寸1440x1020
图1 封闭式镇墩图2 开敞式镇墩镇墩是管道的固定端,它承受轴向力,法向
图片尺寸522x368
镇墩计算电子表格
图片尺寸1440x1020
水利工程# 引江济淮工程,泥河倒虹吸管道,振墩二次挖泥,管中东西南北
图片尺寸2667x2000
某引水式电站工程压力钢管镇墩施工设计图
图片尺寸610x432
图2 开敞式镇墩镇墩是管道的固定端,它承受轴向力,法向力和弯矩,其中
图片尺寸866x640